Благодаря компактным габаритам дом удобно размещается даже на участке от 5–6 соток. При этом остаётся достаточно пространства для террасы, парковки и благоустройства. Это хороший вариант для плотной застройки без потери комфорта.
Проект «Хагэн» — это функциональный двухэтажный дом из газобетона с мансардным этажом, в котором компактные габариты 12,7 × 8,4 грамотно превращены в полноценное жилое пространство площадью 254 м². Архитектура дома сочетает современный внешний вид и практичную планировку, где каждый метр работает на комфорт проживания. За счёт вертикального развития дом не требует большого участка, оставаясь удобным и вместительным.
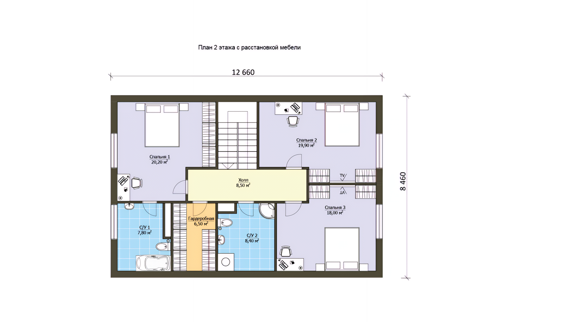
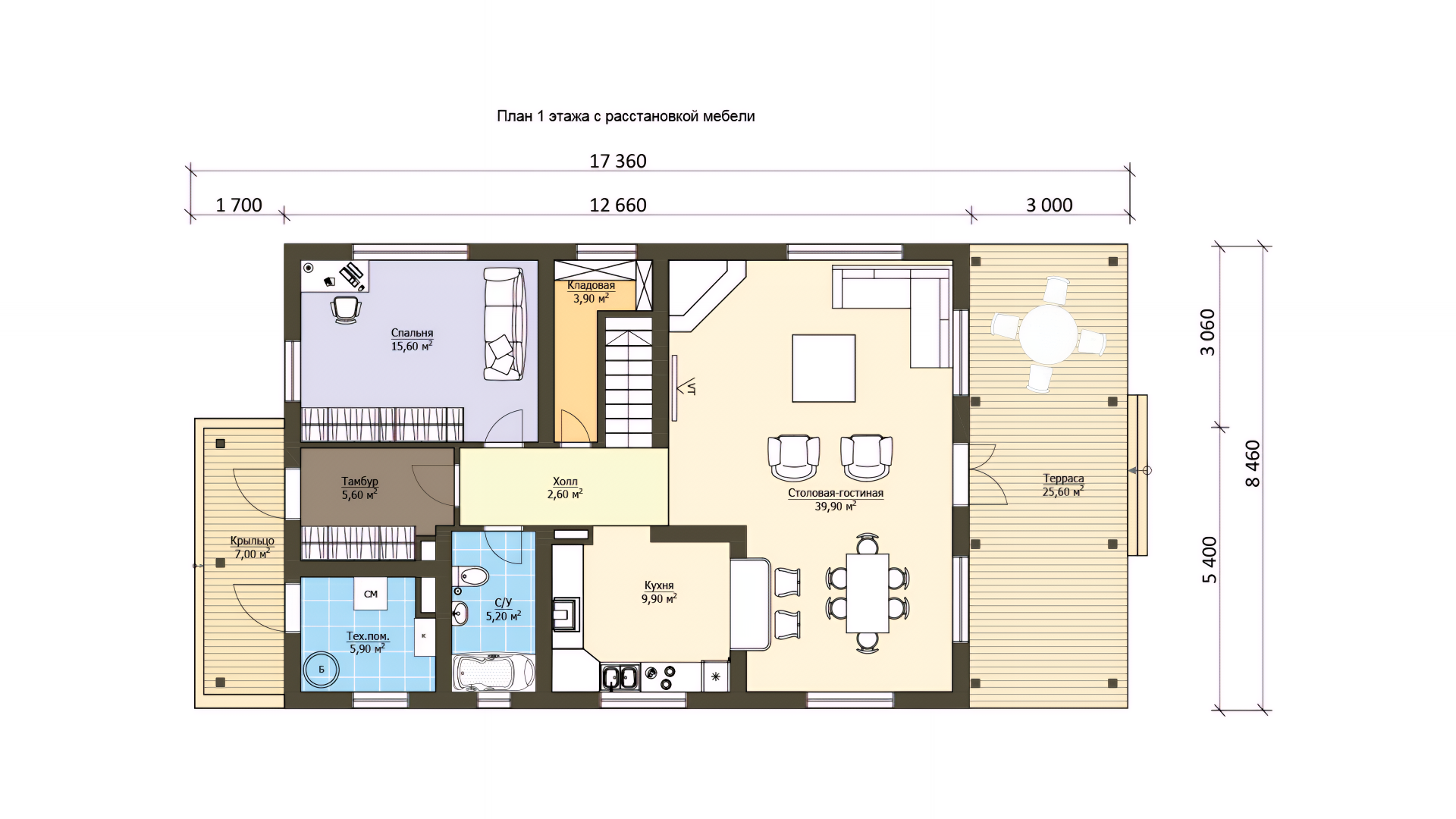
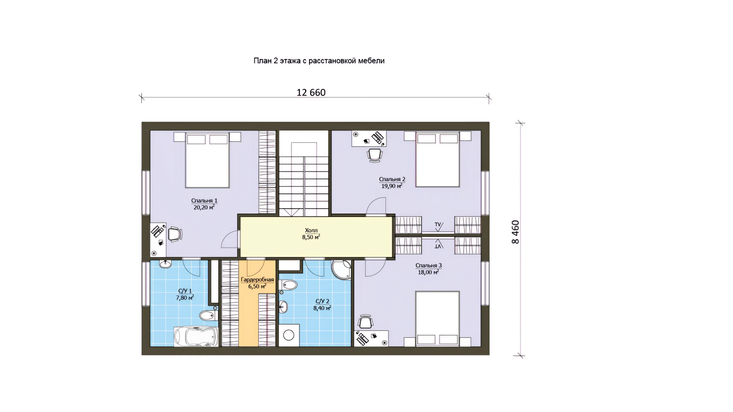
Внутреннее пространство продумано для жизни семьи: на первом этаже расположены общие зоны для отдыха и приёма гостей, а второй уровень отведён под приватную часть. Четыре спальни и два санузла позволяют удобно разместить всех членов семьи без ощущения тесноты. Дополнительные элементы — остеклённая лоджия, балкон и терраса с навесом — расширяют жилое пространство и делают дом более универсальным в использовании.
Главное преимущество проекта — эффективное использование площади. При относительно компактном пятне застройки вы получаете дом с функционалом более крупных коттеджей. Жилая площадь 146,7 м² распределена так, чтобы не было лишних коридоров и «пустых» зон — всё пространство задействовано максимально рационально.
Мансардный этаж выполнен с соблюдением всех современных требований по утеплению и герметичности, поэтому по комфорту он не уступает полноценному этажу. Отсутствие мостиков холода, правильная вентиляция кровли и качественная теплоизоляция обеспечивают стабильный микроклимат без перегрева летом и потерь тепла зимой.
Дополнительный комфорт создают продуманные архитектурные решения: остеклённая лоджия позволяет пользоваться пространством круглый год, балкон добавляет приватности, а навесы над входом и террасой защищают от осадков и делают повседневную эксплуатацию дома более удобной.

Благодаря компактным габаритам дом удобно размещается даже на участке от 5–6 соток. При этом остаётся достаточно пространства для террасы, парковки и благоустройства. Это хороший вариант для плотной застройки без потери комфорта.
Дом рассчитан на семью из 4–6 человек. Четыре спальни позволяют комфортно разместить всех членов семьи, а также предусмотреть отдельную комнату под кабинет или гостей. Это универсальное решение для постоянного проживания.
Лоджия — это полноценное дополнительное помещение. Её можно использовать как зону отдыха, мини-кабинет или зимний сад. За счёт остекления она защищена от ветра и осадков, поэтому остаётся функциональной круглый год.
Нет, при правильной конструкции этого не происходит. Проблема возникает только в дешёвых решениях, где нарушена схема утепления и пароизоляции. В нормальной конструкции используется достаточная толщина утеплителя, герметичный контур и вентиляционный зазор под кровлей. Это исключает перегрев летом и теплопотери зимой, поэтому по комфорту мансарда не уступает обычному этажу.
Нет, если соблюдена технология. В конструкции обязательно закладывается вентиляционный зазор и правильная пароизоляция изнутри. Влага не накапливается в утеплителе, а выводится наружу через вентиляцию кровли. Это защищает конструкцию от сырости и продлевает срок службы дома.
Основная причина — эффективность. Вы получаете почти ту же полезную площадь при меньших затратах на строительство. При этом внешний вид дома становится более выразительным, а внутренняя архитектура — интереснее за счёт скатов и высоты потолков.
Да, проект полностью адаптирован для постоянного проживания. Внешние стены из газобетона толщиной 375 мм обеспечивают хорошую теплоизоляцию, что позволяет сохранять тепло зимой и комфортную температуру летом. При правильно реализованных инженерных системах дом будет энергоэффективным и удобным в эксплуатации круглый год.
Да, проект допускает адаптацию под индивидуальные задачи. Можно изменить назначение помещений, перераспределить площади, например увеличить кухню-гостиную, выделить кабинет или доработать гардеробные зоны. При этом важно учитывать конструктивную схему дома, чтобы изменения не повлияли на надёжность и экономику строительства.