Мы используем cookie-файлы
для оптимизации работы сайта.
Принять
Проектирование
Ипотека
Проекты
Статьи
О нас
Акты
Отзывы
Сертификаты
Документы
Рейтинги
Контакты
+7 925 201 57 54
Получить консультацию
Главная
Каталог проектов
Freiburg
Freiburg
Freiburg
Проект дома может меняться
в зависимости от ваших предпочтений
Freiburg
Проект дома может меняться
в зависимости от ваших предпочтений
8 млн. ₽
Стоимость
от 19.04.2026
Актуальную стоимость
уточняйте у менеджера
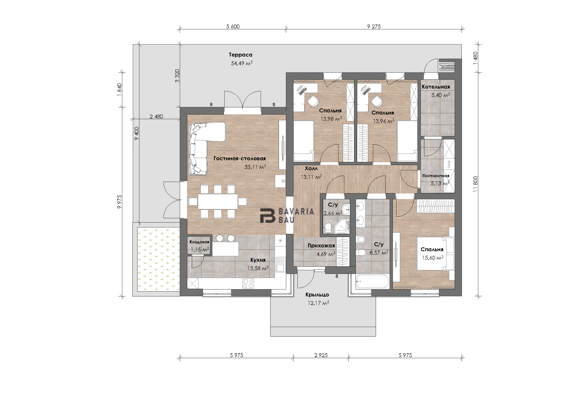
Общая площадь
130 м²
Площадь помещений
130 м
2
Размеры дома
13,4 х 14,9 м
Сроки строительства
150 дней
Отправить заявку
Информация о проекте
Просторная кухня-гостинная с выходом на террасу.
Для комфортного проживания предустотрены 3 спален, 2 санузел, постирочная, кладовая, котельная
Описание материалов
Необходимые доп. работы
Доп. опции
Фундаментная плита
Песчаная подушка т=40-60см с утеплёнными коммуникациями
Подбетонка, бетон марки М100, т=10см
Гидроизоляция, плёнка 150мкм
Утеплитель Технониколь xps eco carbon, т= 100мм
Фундаментная плита, бетон марки М350
Стены и перегородки газобетон IstKult
стены газобетон IstKult, толщина т=375мм, плотность D400 (армирования, по рекомендации производителя)
перегородки газобетон IstKult, толщина т=150мм, плотность D500
армопояс в U-блок IstKult, по рекомендации производителя
Перекрытие
монолитное
сборно-монолитное по системе Марко
Крыша
кровельное покрытие пвх мембрана
кольцевая дренажная система
кольцевая ливнёвая система
утепленная отмостка
утеплённая кровля с наклоном
пластиковые энергоэффективные окна, двери Rehau или Veka
утепление стен, т=100мм
штукатурка стен
кровельные зенитные фонари
алюминиевые энергоэффективные окна, двери Rehau или Veka
оконные отливы
отделка бойлерной
установка газового отопительного оборудования
установка электрического отопительного оборудования
устройство электричество
устройство водоснабжения
Похожие проекты
Больше проектов
Open Village
Стоимость проекта
По запросу
Общая площадь
По запросу
Подробнее
Нахабино
Стоимость проекта
По запросу
Общая площадь
По запросу
Подробнее
Dresden
Стоимость проекта
8.2 млн. ₽
Общая площадь
120 м²
Подробнее
Singen
Стоимость проекта
6 млн. ₽
Общая площадь
72 м²
Подробнее
Дядьково
Стоимость проекта
По запросу
Общая площадь
По запросу
Подробнее
Архангельское
Стоимость проекта
По запросу
Общая площадь
По запросу
Подробнее
Frankfurt
Стоимость проекта
9.6 млн. ₽
Общая площадь
175 м²
Подробнее
Тарково
Стоимость проекта
По запросу
Общая площадь
По запросу
Подробнее
Сходня
Стоимость проекта
По запросу
Общая площадь
По запросу
Подробнее
Lindau
Стоимость проекта
9.2 млн. ₽
Общая площадь
158 м²
Подробнее
Ногинск
Стоимость проекта
По запросу
Общая площадь
По запросу
Подробнее
Тимошкино-2
Стоимость проекта
По запросу
Общая площадь
По запросу
Подробнее
Рекомендуем
Больше проектов
175 м²
Frankfurt
Подробнее
116 м²
Ulm
Подробнее
117 м²
Passau
Подробнее
142 м²
München
Подробнее
139 м²
Köln
Подробнее
160 м²
Dortmund
Подробнее
72 м²
Singen
Подробнее
130 м²
Freiburg
Подробнее
120 м²
Dresden
Подробнее
158 м²
Lindau
Подробнее
Больше проектов
Есть вопросы о строительстве дома?
Заполните заявку и наши инженеры помогут сделать планировку, определится с этажностью, материалом и расположением на участке
Прикрепить файлы (jpg, png, pdf)
Отправить заявку
Отправляя данную форму вы соглашаетесь с
политикой обработки персональных данных.
Заполните форму
И в ближайшее время с вами свяжется директор компании
Прикрепить файлы (jpg, png, pdf)
Отправить заявку
Отправляя данную форму вы соглашаетесь с
политикой обработки персональных данных.
Заполните форму
Записаться на просмотр
И в ближайшее время с вами свяжется директор компании
Заполните краткую форму и наш специалист с вами свяжется
Прикрепить файлы (jpg, png, pdf)
Отправить заявку
Отправляя данную форму вы соглашаетесь с
политикой обработки персональных данных.
Проектирование
Ипотека
Проекты
Статьи
О нас
Назад
О нас
Акты
Отзывы
Сертификаты
Документы
Рейтинги
Контакты
+7 925 201 57 54
info@bavaria-bau.ru
Ваша заявка
отправлена
Наш менеджер свяжется с вами в ближайшее время
Продолжить
Спасибо
за заявку!
Ваша презентация отправлена на почту
Продолжить
Закрыть
Назад
Фильтр
Сбросить
Дата
Проверяем что
вы не робот
Проверим, что вы человек. Нажмите «Продолжить»
Продолжить