С учётом габаритов 17,5 × 15,8 м оптимально рассматривать участок от 8–10 соток. Это позволит комфортно разместить дом, гараж, террасу и оставить пространство под двор, сад или зону отдыха.
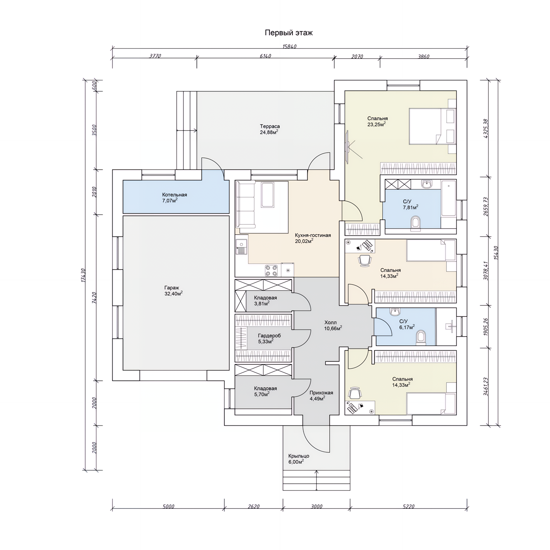
Проект «Альба» — это просторный одноэтажный дом площадью 225 м² в классическом стиле, рассчитанный на комфортную семейную жизнь. Архитектура дома выглядит солидно и гармонично: аккуратные фасады, вальмовая кровля и продуманные пропорции делают его универсальным решением для загородного участка. Габариты 17,5 × 15,8 м позволяют удобно разместить дом и сохранить пространство для двора и ландшафта.
Планировка выстроена максимально логично. Центральное место занимает кухня-гостиная с выходом на открытую террасу — это светлое и удобное пространство для общения, отдыха и приёма гостей. Терраса становится естественным продолжением дома, особенно в тёплое время года. Отдельно предусмотрена зона хранения рядом с кухней — кладовая, которая значительно упрощает быт.
Жилая часть дома включает три спальни, из которых две отлично подойдут под детские комнаты. Они расположены в отдельной зоне, что обеспечивает тишину и приватность. Также предусмотрены два санузла, гардеробная и сразу две кладовые, а встроенный гараж с доступом из дома добавляет удобства в повседневной жизни.
Главное преимущество «Альба» — это продуманная одноэтажная планировка без лишних переходов и лестниц. Все помещения находятся на одном уровне, что делает дом удобным для семей с детьми и людей, которые ценят простоту и комфорт передвижения внутри дома.
Отдельного внимания заслуживает система хранения. Гардеробная и две кладовые позволяют грамотно организовать пространство: одежда, сезонные вещи, бытовые запасы и техника не занимают жилые комнаты. Это напрямую влияет на порядок в доме и общий уровень комфорта.
Также стоит отметить встроенный гараж. Он защищает автомобиль от погодных условий и даёт дополнительное место для хранения инструментов и инвентаря. При этом вход в дом можно организовать напрямую из гаража, что особенно удобно в холодное время года.

С учётом габаритов 17,5 × 15,8 м оптимально рассматривать участок от 8–10 соток. Это позволит комфортно разместить дом, гараж, террасу и оставить пространство под двор, сад или зону отдыха.
Дом идеально подойдёт для семьи из 3–5 человек. Две отдельные детские спальни и одна взрослая обеспечивают каждому личное пространство, при этом общая зона остаётся просторной и удобной для всей семьи.
Да, проектом это предусмотрено. Такой вход особенно удобен в плохую погоду — вы попадаете в дом, не выходя на улицу, что повышает комфорт эксплуатации.
Да, проект полностью адаптирован для постоянного проживания. Внешние стены из газобетона толщиной 375 мм обеспечивают хорошую теплоизоляцию, что позволяет сохранять тепло зимой и комфортную температуру летом. При правильно реализованных инженерных системах дом будет энергоэффективным и удобным в эксплуатации круглый год.
Да, проект допускает адаптацию под индивидуальные задачи. Можно изменить назначение помещений, перераспределить площади, например увеличить кухню-гостиную, выделить кабинет или доработать гардеробные зоны. При этом важно учитывать конструктивную схему дома, чтобы изменения не повлияли на надёжность и экономику строительства.