Мы используем cookie-файлы
для оптимизации работы сайта.

Маяк

Проект дома может меняться
в зависимости от ваших предпочтений
Маяк
Проект дома может меняться
в зависимости от ваших предпочтений
По запросу
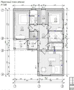
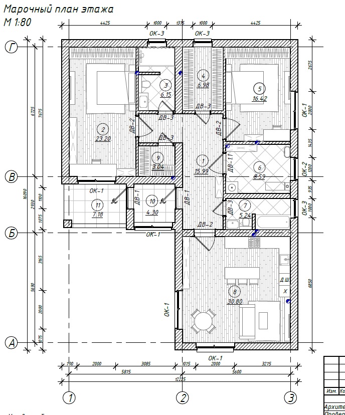
  • Общая площадьОбщая площадь121 м²
  • Площадь дома121 м²
  • Площадь с террасой128 м2
  • Этажность1
  • Размеры дома12,2 х 16,1 м

Информация о проекте

Проект «Маяк» — одноэтажный дом из газобетона, разработанный для круглогодичного проживания и адаптированный под современные требования энергоэффективного строительства. Просторная кухня-гостинная с выходом на террасу. Для комфортного проживания предустотрены 2 спален, 1 санузел, бойлерная. Архитектура дома выполнена в классическом стиле с выразительными угловыми элементами и симметричными фасадами, что делает здание эстетичным и гармонично вписывающимся в любой участок. Одноэтажная конфигурация обеспечивает удобное перемещение по дому, отсутствие лестниц и рациональное распределение внутренних помещений.

В основе конструкции — газобетонные блоки, отличающиеся низкой теплопроводностью, устойчивостью к перепадам температур и хорошей звукоизоляцией. Такой материал позволяет сократить расходы на отопление и повысить энергоэффективность дома. Толщина стен обеспечивает достаточную несущую способность и долговечность, а фасадная штукатурка защищает конструкцию от влаги и ультрафиолета. Светлое цветовое решение фасада делает дом визуально лёгким и современным.

Фундамент дома выполнен с учётом расчётных нагрузок и особенностей грунта на участке. Работы включали подготовку котлована, устройство уплотнённой песчаной подушки, прокладку инженерных коммуникаций и монтаж фундаментной плиты/ленты (в зависимости от данных проекта). Такой тип основания обеспечивает надёжность конструкции, отсутствие просадок и устойчивость к сезонным изменениям почвы. Фото этапов строительства подтверждают правильность выполнения земляных и бетонных работ.

Кровля имеет двускатную форму, что обеспечивает эффективный водоотвод и равномерное распределение снеговой нагрузки. Используются долговечные кровельные материалы с высокими показателями гидроизоляции. Конструкция стропил рассчитана на эксплуатацию в климатических условиях средней полосы, а свесы крыши дополнительно защищают фасад от осадков. Водосточная система смонтирована по периметру и направляет сток в дренажные зоны участка.

Планировка проекта «Маяк» ориентирована на функциональность: в доме предусмотрены изолированные жилые комнаты, просторная кухня-гостиная, санузлы, техпомещения и зоны хранения. Большие окна обеспечивают естественное освещение и визуально расширяют внутреннее пространство. Входная группа оформлена нависающим кровельным свесом, который защищает крыльцо от осадков и служит дополнительным архитектурным акцентом.

Проект «Маяк» идеально подходит для строительства тёплого и экономичного частного дома на участке любой площади. Одноэтажный формат, энергоэффективные материалы, продуманный конструктив и быстрые сроки возведения делают этот проект одним из наиболее востребованных решений для семей, выбирающих практичное и долговечное жильё.
Утеплённая фундаментная плита
  • т=25см
  • Бетон марки М350
  • Утеплитель т=100мм
Стены газобетон IstKult
  • т=375мм
  • Плотность D400 (без армирования, по рекомендации производителя)
Армопояс газобетон IstKult
  • U-блок с внутренним утеплением
Перегродки газобетон IstKult
  • т=150мм
  • Плотность D500
Утеплённый мауерлат
  • Утеплитель xps т=100мм
Колонны
  • Монолитные
Кровельная стропильная система
  • Доски обработанные. т=50х200мм / т=150/150мм
Кровельное покрытие
  • Гибкая черепица ТехноНиколь. Система Холодный чердак
Обратная засыпка грунта
  • Обратная засыпка грунта на ширину 1,0м
Кольцевая дренажная система
Кольцевая ливнёвая система
Утеплённая отмостка
  • Утеплитель т=50мм / т=100мм
Подшив кровельных свесов
  • Металл. софиты
Водосточная система
  • Металлическая
Утепление по балкам
  • Утепление минвата. Т=300мм
  • Пароизоляция
Чердак
  • Подшив чердачного пола. Фанера OSB т=12мм
Мансардные окна
  • Fakro
Штукатурка, внутренния
  • СФТК - Церезит
Штукатурка, внешняя
  • Церезит CT Light
Окна
  • Энергоэффективные Veka
  • Оконные отливы

Похожие проекты

Больше проектов

Рекомендуем

Главная
Уверенность Заказчика
Предоставляем все сертификаты используемых материалов
Главная
Контроль Заказчиком
Видеонаблюдение за ходом работ 24/7
Главная
Акты осмотра
Технадзор внешними экспертами и Инстутутом Пассивного Дома
Главная
Форма оплаты
Возможна оплата по договору через эскроу-счет
Владимир Эбергардт - директор Bavaria-Bau
Есть вопросы о строительстве дома?
Заполните заявку и наши инженеры помогут сделать планировку, определится с этажностью, материалом и расположением на участке

Отправляя данную форму вы соглашаетесь с политикой обработки персональных данных.