Мы используем cookie-файлы
для оптимизации работы сайта.

Проект дома 317 м² — одноэтажный из газобетона «Эссен»

Проект дома 317 м² — одноэтажный из газобетона
«Эссен»
Проект дома может меняться
в зависимости от ваших предпочтений
Проект дома 317 м² — одноэтажный из газобетона
«Эссен»
Проект дома может меняться
в зависимости от ваших предпочтений
14 391 035 ₽
Стоимость
от 17.04.2026
Актуальную стоимость
уточняйте у менеджера
  • Жилая площадьЖилая площадь175.7 м²
  • Общая площадьОбщая площадь317 м²
  • Кол-во спаленКол-во спален3
  • Кол-во сан узловКол-во сан узлов1
  • Кол-во этажейКол-во этажей1

Описание

Проект одноэтажного дома из газобетона «Эссен» площадью 317 м² — это современный дом в стиле модерн с акцентом на простор, свет и приватность. Габариты 22,8 × 16,5 м требуют участка от среднего к большому, но позволяют реализовать комфортную планировку без ограничений по площади. Архитектура построена на простых геометриях, плоской кровле и панорамном остеклении, что формирует современный внешний вид и максимально открывает дом к участку.

Ключевая зона — кухня-гостиная площадью 65,5 м² с панорамными окнами и выходом на большую террасу 35,5 м² с камином. Это основное пространство дома, где объединены кухня, столовая и зона отдыха без перегородок. За счёт остекления и прямого выхода на улицу создаётся ощущение единого пространства с участком.

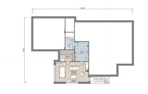
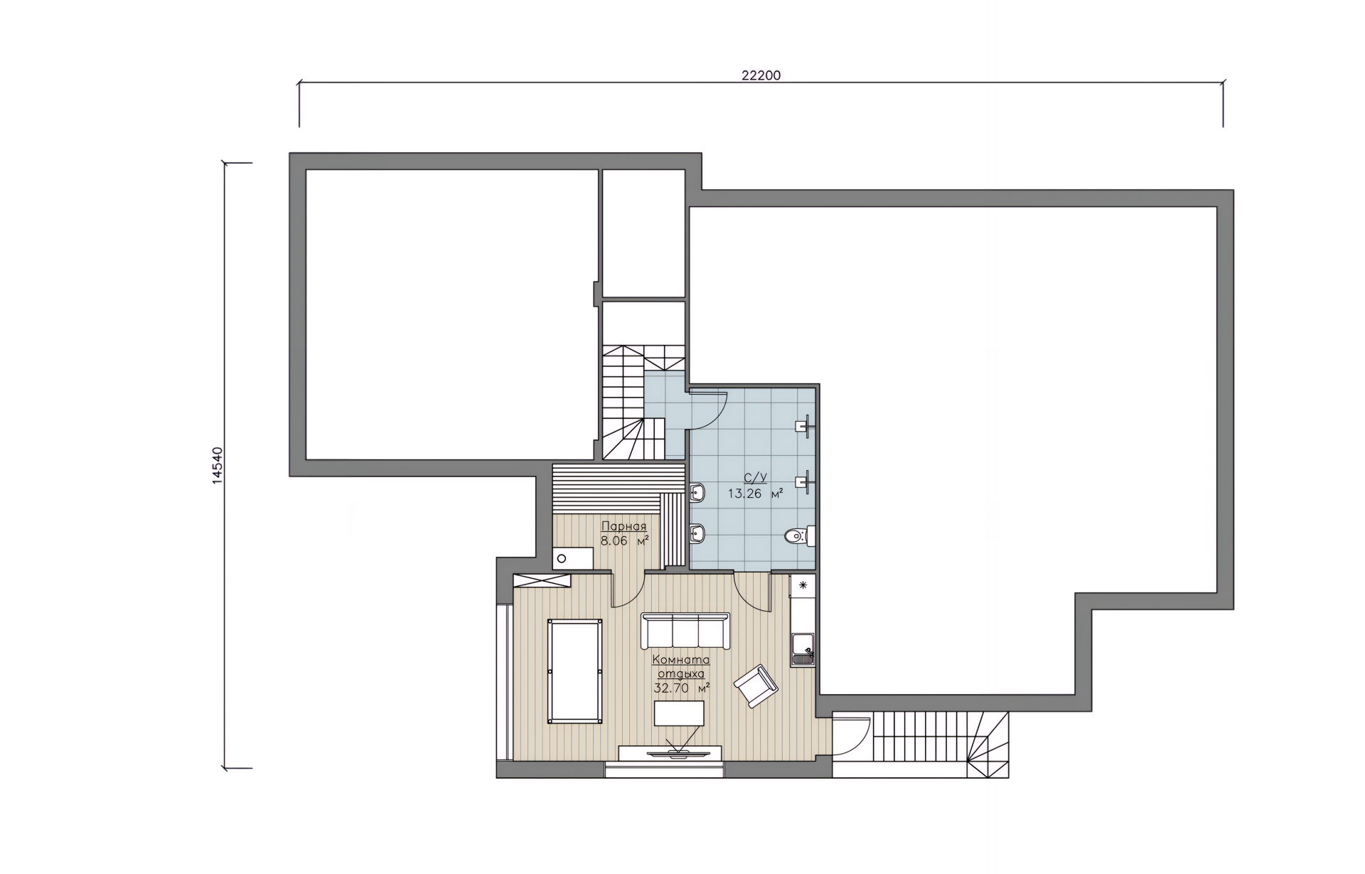
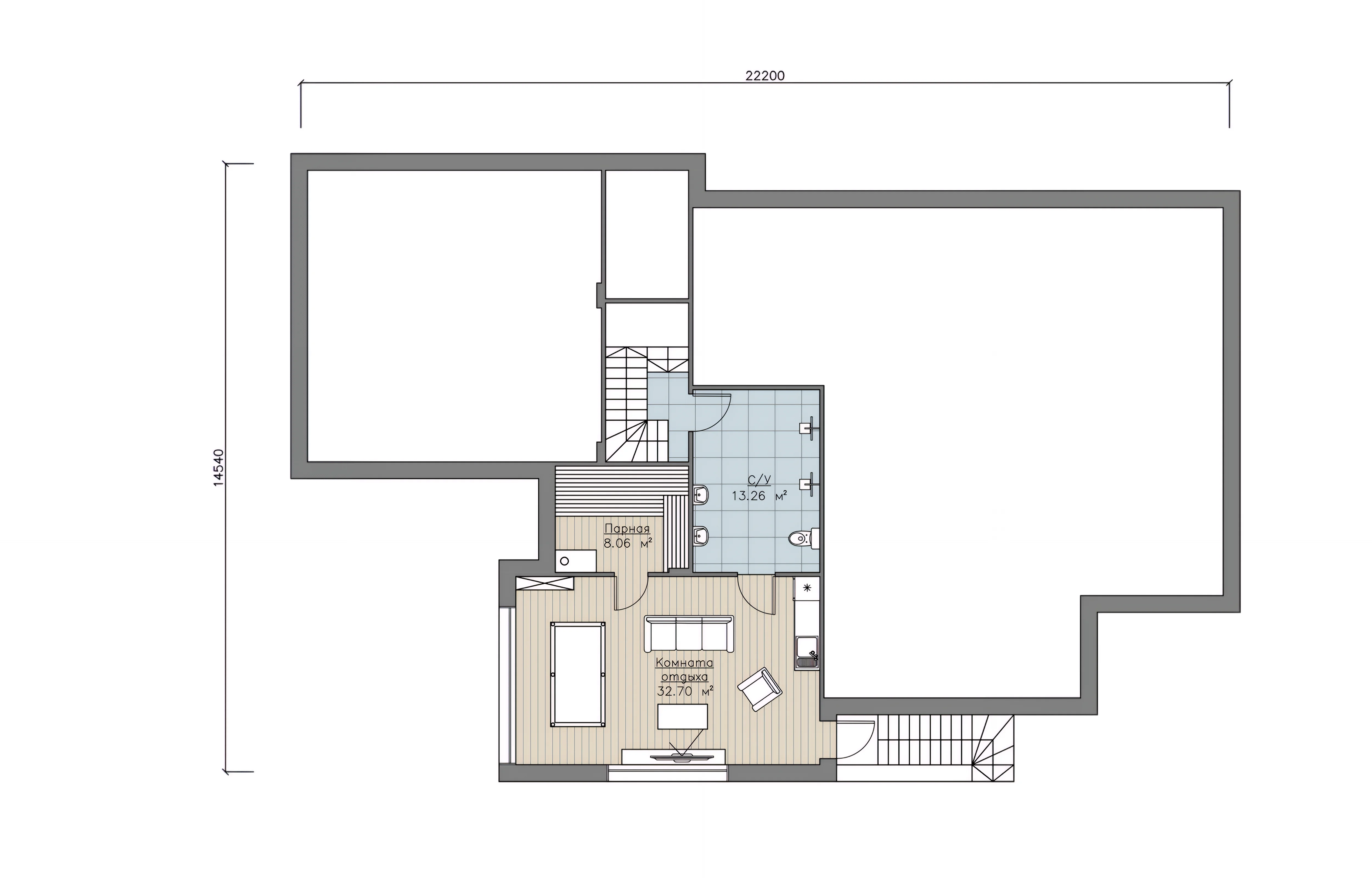
В доме предусмотрены три спальни, отдельная гардеробная, санузел увеличенной площади, котельная и удобная входная группа с тамбуром. Отдельное преимущество — встроенный гараж на два автомобиля с прямым доступом в дом. Дополнительно проект предусматривает возможность использования эксплуатируемой кровли, а также обустройства дополнительной зоны отдыха с парной и отдельной комнатой на нижнем уровне.

Преимущества планировки

Планировка дома построена вокруг одной большой общей зоны, что делает его удобным для жизни и приёма гостей. Кухня-гостиная не разделена на мелкие помещения, поэтому пространство используется максимально эффективно и не теряется в коридорах. При этом спальни вынесены в отдельный блок, что обеспечивает тишину и приватность.

Одноэтажный формат исключает лестницы, что повышает удобство эксплуатации и делает дом комфортным на долгие годы. Все помещения находятся на одном уровне, перемещения внутри дома быстрые и логичные.

Гараж на два автомобиля интегрирован в дом, благодаря чему не требуется отдельное строение и сохраняется пространство участка. Прямой вход из гаража упрощает повседневные сценарии, особенно в холодное время года.

Терраса с камином — полноценная зона отдыха, которая фактически расширяет жилое пространство. Возможность использования эксплуатируемой кровли и дополнительного уровня с парной делает проект гибким и позволяет увеличить функциональность дома без изменения основной планировки.

Комплектация проекта

Комплектация

Черновик

Утепленная фундаментая плита

  • Песчаная подушка т=40-60см с утеплёнными коммуникациями
  • Подбетонка, бетон марки М100, т=10см
  • Гидроизоляция, плёнка 150мкм
  • Утеплитель Технониколь xps eco carbon, т= 100мм
  • Фундаментная плита, бетон марки М350
Черновик

Стены

  • стены газобетон IstKult, толщина т=375мм, плотность D400
  • перегородки газобетон IstKult, толщина т=150мм, плотность D500
Черновик

Армопояс, колоны и ригеля

  • Армопояс в U-блок IstKult
  • Монолитные колонны. Бетон В22,5
  • Ригель — горизонтальный несущий элемент конструкции
Черновик

Перекрытие

В зависимости от типа проекта :

  • Балочные (Из дерева)
  • Газобетоные
  • Монолитное
Черновик

Крыша

  • Брус 50х150 (Стыковка через запил)
  • Обрезная доска для стропил
  • Бруски для контр обрешетки
  • Крепежные элементы
  • Изоляция: Гидро-ветрозащитная
  • Антисептики для защиты древесины
Черновик

Кровля

  • Гибкая черепица

Доп.работы

Утеплённая бетонная отмостка

Снижает промерзание грунта у основания дома и отводит воду от фундамента.

Утепление мауерлата

Снижает теплопотери в зоне примыкания кровли к стенам и предотвращает образование мостиков холода.

Подшив кровельных свесов (металл)

Защищает конструкцию крыши от влаги и ветра, обеспечивая аккуратный внешний вид и вентиляцию.

Обратная подсыпка к отмостке

Формирует правильный уклон и уплотнение грунта для стабильности отмостки и отвода воды от дома.

Кольцевая дренажная система

Отводит грунтовые и поверхностные воды, предотвращая переувлажнение и давление на фундамент.

Водосточная система (металл)

Организует эффективный отвод дождевой и талой воды с кровли, защищая фасад и фундамент.

Необязательные доп.работы

Внешняя штукатурка

Защищает фасад от атмосферных воздействий и формирует аккуратный внешний вид здания.

Внутренняя штукатурка

Выравнивает стены и подготавливает поверхности под чистовую отделку.

Стяжка пола

Создаёт ровное и прочное основание под напольные покрытия и распределяет нагрузки.

Водоснабжение

Организуется подача воды с разводкой труб по всем точкам потребления.

Сантехника

Монтаж инженерных узлов и оборудования для корректной работы системы водоотведения и водопользования.

Электрические работы

Выполняется разводка электросетей с учётом безопасности и удобства эксплуатации.

Утепление кровли

Обеспечивает теплоизоляцию дома, снижает теплопотери и предотвращает образование конденсата.

Стоимость проекта

14 391 035 ₽
Стоимость проекта дома «Эссен» составляет 12 849 139 ₽. Дом относится к сегменту выше среднего за счёт большой площади, архитектурных решений и наличия дополнительных функций, таких как гараж на два автомобиля, панорамное остекление и терраса с камином.
При этом проект остаётся рациональным: конструкция без сложных форм и понятная планировка позволяют контролировать затраты на строительство. Основная стоимость формируется за счёт площади и функциональности, а не за счёт избыточных элементов.

Как мы строим дом

Утепленный фундамент

Мы используем утеплённую монолитную плиту. Это надёжное и тёплое основание, которое защищает дом от потерь тепла через пол. Сначала формируется плотная песчаная подушка толщиной 40–60 см с

заранее заложенными коммуникациями. Затем заливается выравнивающий слой бетона (М100, толщина 10 см), чтобы все последующие слои легли ровно. Укладывается гидроизоляционная плёнка (150 мкм), которая защищает конструкцию от влаги. Далее монтируется утеплитель (Технониколь XPS Eco Carbon, толщина 100 мм), который не даёт фундаменту промерзать. После армирования (арматура по ГОСТ) заливается основная плита из бетона высокой прочности (М350) — в итоге получается цельное, надёжное основание под весь дом.

Стены

Далее возводятся стены из газобетона по технологии тонкошовной кладки (IstKult). Наружные стены выполняются из блоков толщиной 375 мм с плотностью D400 — это тёплый материал, который в

большинстве случаев не требует дополнительного утепления. Внутренние перегородки делаются из газобетона толщиной 150 мм (D500). Между блоками используется минимальный слой клея (около 2 мм ±1 мм), благодаря чему стены лучше сохраняют тепло. Особое внимание уделяется всем узлам — в местах окон, перекрытий и соединений стен, чтобы исключить теплопотери. Газобетон практически не даёт усадки (около 1,5 мм на этаж) и обладает хорошей прочностью (B2.5), а также высокой огнестойкостью (REI 240).

Армопояс, колоны и ригеля

Для усиления конструкции выполняется армопояс, а также при необходимости добавляются колонны и ригеля. Армопояс делается в заводских U-блоках (IstKult), что позволяет получить ровную и

аккуратную геометрию. Внутри выполняется армирование, а сами колонны заливаются из бетона класса B22,5. Ригель служит горизонтальным несущим элементом и помогает правильно распределять нагрузки. Весь этот этап делает дом более жёстким и устойчивым.

Деревянные перекрытия

Надёжное и практичное решение для частного дома, особенно при скатной кровле. Чаще всего применяются в одноэтажных домах или домах с мансардой, где нет повышенных нагрузок — это позволяет сделать конструкцию быстрее и экономичнее без потери надёжности.

Используется доска камерной сушки (КС), которая не деформируется со временем. Основные балки сечением 50×200 мм укладываются с расчётным шагом и опираются на армопояс через изоляционный слой, чтобы защитить древесину от влаги.

Все соединения выполняются с запилами — элементы точно подгоняются друг к другу, за счёт чего конструкция получается жёсткой и стабильной. Дополнительно применяются металлические крепёжные элементы для усиления узлов. Древесина обрабатывается огнебиозащитными составами, что защищает её от влаги, грибка и повышает устойчивость к возгоранию.

Газобетонное перекрытие

Применяются в случаях, когда требуется более жёсткая и устойчивая конструкция, чем деревянная — например, при полноценном втором этаже, больших пролётах или использовании тяжёлых перегородок. Такое решение позволяет избежать вибраций и делает перекрытие более стабильным в эксплуатации.

Конструкция собирается из газобетонных элементов с металлическими рёбрами жёсткости и последующей заливкой бетона. За счёт этого снижается расход материалов по сравнению с монолитом, но сохраняется необходимая прочность. Перекрытие работает как единая система вместе со стенами из газобетона, равномерно распределяя нагрузки.

Особое внимание уделяется узлам опирания, армированию и утеплению по периметру, чтобы исключить мостики холода и сохранить теплоэффективность. В результате получается прочное, стабильное и тёплое перекрытие с оптимальным балансом между стоимостью и надёжностью.

Монолитное перекрытие

Максимально прочное и жёсткое решение, которое применяется при высоких нагрузках: полноценный второй этаж, большие пролёты, сложная архитектура. Такое перекрытие полностью исключает вибрации и даёт ощущение «каменного» дома.

Конструкция выполняется по опалубке с обязательным армированием в две сетки (арматура по ГОСТ) с соблюдением защитного слоя бетона. Все узлы, проходы коммуникаций и усиления заранее закладываются до заливки, чтобы получить цельную и правильно работающую плиту. Используется заводской бетон, что гарантирует стабильное качество и прочность.

Особое внимание уделяется геометрии, уровню и равномерности армирования — это напрямую влияет на надёжность всей конструкции. По периметру прорабатывается утепление и узлы примыкания, чтобы исключить мостики холода. В результате получается монолитная плита с высокой несущей способностью, долговечностью и максимальной устойчивостью к нагрузкам.

Крыша

Завершающий несущий контур дома, который принимает на себя снеговые и ветровые нагрузки и защищает конструкцию от влаги.

Основа — стропильная система из сухой доски с обязательной огнебиозащитной обработкой. Узлы собираются с точной геометрией: выдерживаются шаг, углы запилов и линии конька, чтобы нагрузка распределялась равномерно. Все соединения выполняются на гвоздях/саморезах и усиливаются металлическими элементами в ключевых зонах.

Формируется жёсткий каркас: мауэрлат закреплён к стенам, стропила опираются правильно, дополнительно используются затяжки и распорки для исключения прогибов. Далее выполняется сплошное или разреженное основание (обрешётка/настил), подготавливается вентиляционный зазор и узлы под кровельное покрытие.

На выходе — ровная, жёсткая и геометрически точная конструкция, готовая к устройству кровли, утеплению и последующим слоям.

Кровля

Это многослойная система, которая обеспечивает герметичность, вентиляцию и долговечность всей крыши. На этом этапе конструкция окончательно защищается от осадков и перепадов температур.

Основание под кровлю подготавливается на жёстком настиле (OSB/обрешётка), после чего укладывается подкладочный гидроизоляционный ковер с герметизацией всех нахлёстов и примыканий. Особое внимание уделяется зонам риска — ендовы, карнизы, конёк и проходы через кровлю.

Далее монтируется финишное покрытие — гибкая битумная черепица. Укладка выполняется с точной геометрией рядов, соблюдением шагов крепления и температурных режимов, что обеспечивает плотное прилегание и защиту от ветровых нагрузок. Формируются аккуратные узлы коньков и ребер.

Инженерные элементы интегрируются в кровлю:
— вентиляционные выходы для подкровельного пространства,
— аэраторы для удаления влаги и продления срока службы конструкции,
— герметичные проходы через кровлю.

Примыкания (в том числе к дымоходам) выполняются с использованием металлических фартуков и герметиков, исключающих протечки. Дополнительно устанавливается водосточная система и элементы безопасности/эксплуатации кровли.

Результат — полностью герметичная, вентилируемая и эстетически завершённая кровля, готовая к эксплуатации в любых погодных условиях.

Индивидуальные
изменения проекта

  • Можно изменить планировку
  • Можно увеличить площадь
  • Можно изменить внешний вид
  • Можно адаптировать под участок

Оставьте имя и телефон что бы обсудить
индивидуальные изменения

Отправляя данную форму вы соглашаетесь с политикой обработки персональных данных.

Вопросы и ответы

Шаблон проекта
Подходит ли дом для круглогодичного проживания и не будет ли он промерзать зимой?

Да, дом рассчитан на постоянное проживание. Стены из газобетона толщиной 350 мм обеспечивают хорошую теплоизоляцию и не промерзают при правильной отделке и утеплении узлов. При установке качественных окон и системе отопления дом остаётся тёплым зимой и не требует чрезмерных затрат на обогрев.

Такое пространство позволяет свободно совмещать кухню, столовую и гостиную без ощущения тесноты. Удобно готовить, общаться с семьёй и принимать гостей. При необходимости пространство легко зонируется мебелью или освещением.

Эксплуатируемая кровля — это дополнительное полезное пространство, которое можно использовать как зону отдыха, террасу или лаунж. Это актуально, если участок ограничен или хочется получить дополнительную приватную зону без увеличения площади застройки.

Гараж защищает автомобили от осадков и холода, а также упрощает повседневные задачи — не нужно выходить на улицу, чтобы попасть в дом. Это особенно удобно зимой и в плохую погоду.

Для семьи из 3–4 человек одного большого санузла может быть достаточно, особенно если он грамотно спланирован. При необходимости проект позволяет добавить второй санузел за счёт перепланировки без серьёзных изменений конструкции.

Дом требует участок от 10–12 соток и больше из-за габаритов и террасы. На меньших участках его размещение может быть затруднено, особенно с учётом подъезда к гаражу и зон отдыха.

Похожие проекты

Рекомендуем

Подбор дома по особеностям