Мы используем cookie-файлы
для оптимизации работы сайта.

Проект дома 260 м² — двухэтажный из газобетона «Линц»

Проект дома 260 м² — двухэтажный из газобетона
«Линц»
Проект дома может меняться
в зависимости от ваших предпочтений
Проект дома 260 м² — двухэтажный из газобетона
«Линц»
Проект дома может меняться
в зависимости от ваших предпочтений
14 962 710 ₽
Стоимость
от 17.04.2026
Актуальную стоимость
уточняйте у менеджера
  • Жилая площадьЖилая площадь144.3 м²
  • Общая площадьОбщая площадь260 м²
  • Кол-во спаленКол-во спален4
  • Кол-во сан узловКол-во сан узлов3
  • Габариты домаГабариты дома13,7 x 11,6 м
  • Кол-во этажейКол-во этажей2
  • Сроки строительства120 дней
  • Возможность изменить проектДа
  • Круглогодичное проживаниеДа
  • Материал стен\перегородокГазобетонные блоки
  • Тип фундаментаУтепленный, плитный
  • Толщина внешних стен375 мм
  • Толщина перегородок150 мм

Описание

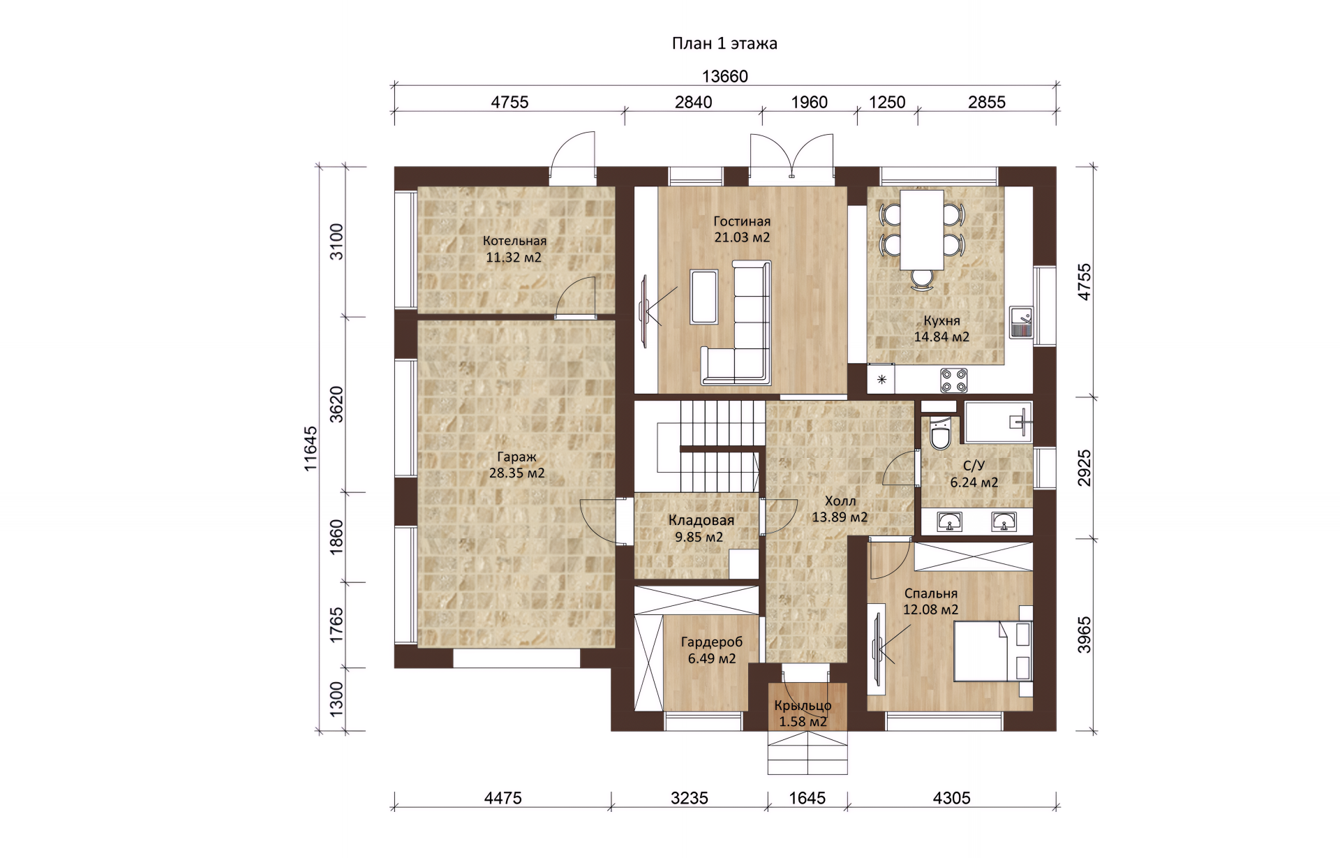
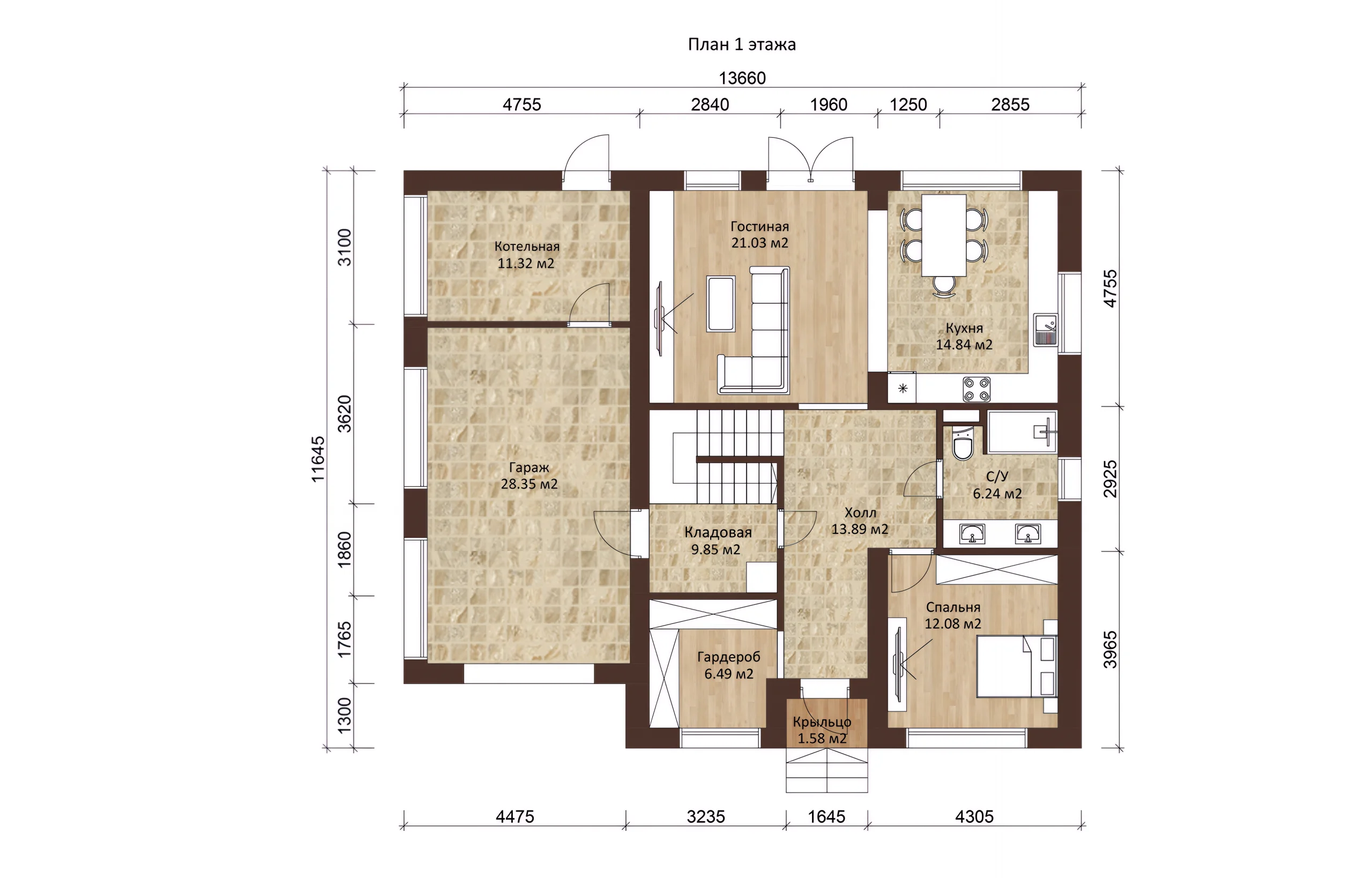
Проект «Линц» — это просторный двухэтажный дом из газобетона общей площадью 260 м², выполненный в скандинавском стиле. Архитектура сочетает лаконичность форм, функциональность и современную эстетику, благодаря чему дом выглядит аккуратно и актуально в любой загородной застройке. Габариты 13,7 × 11,6 м позволяют удобно разместить его на участке, сохранив место для двора и зоны отдыха.

Планировка продумана с акцентом на комфорт повседневной жизни. На первом этаже расположена большая кухня, объединённая с гостиной, а также технические и вспомогательные помещения, включая котельную, кладовую и встроенный гараж. Второй этаж отведён под приватную зону — здесь находятся спальни и дополнительный санузел. В доме предусмотрен отдельный кабинет, который идеально подойдёт для работы, учёбы или уединённого отдыха.

Преимущества планировки

Главное преимущество «Линц» — это функциональность, доведённая до логики загородного дома. Наличие встроенного гаража обеспечивает удобство в любое время года: вы попадаете в дом напрямую, не выходя на улицу. При этом технические помещения грамотно изолированы от жилых зон, что повышает комфорт и снижает уровень шума.

Дом чётко разделён на общественную и приватную части. Первый этаж — это активная зона для жизни и общения, второй — спокойное пространство для отдыха. Четыре спальни позволяют гибко использовать комнаты: под детские, гостевые или дополнительные функции. Отдельный кабинет — сильное преимущество для тех, кто работает из дома или ценит личное пространство.

Дополнительный плюс — наличие трёх санузлов, что существенно повышает удобство для большой семьи. Планировка исключает «узкие места» и очереди в утренние часы, а также делает дом комфортным при приёме гостей.

Комплектация проекта

Комплектация

Черновик

Утепленная фундаментая плита

  • Песчаная подушка т=40-60см с утеплёнными коммуникациями
  • Подбетонка, бетон марки М100, т=10см
  • Гидроизоляция, плёнка 150мкм
  • Утеплитель Технониколь xps eco carbon, т= 100мм
  • Фундаментная плита, бетон марки М350
Черновик

Стены

  • стены газобетон IstKult, толщина т=375мм, плотность D400
  • перегородки газобетон IstKult, толщина т=150мм, плотность D500
Черновик

Армопояс, колоны и ригеля

  • Армопояс в U-блок IstKult
  • Монолитные колонны. Бетон В22,5
  • Ригель — горизонтальный несущий элемент конструкции
Черновик

Перекрытие

В зависимости от типа проекта :

  • Балочные (Из дерева)
  • Газобетоные
  • Монолитное
Черновик

Крыша

  • Брус 50х150 (Стыковка через запил)
  • Обрезная доска для стропил
  • Бруски для контр обрешетки
  • Крепежные элементы
  • Изоляция: Гидро-ветрозащитная
  • Антисептики для защиты древесины
Черновик

Кровля

  • Гибкая черепица

Доп.работы

Утеплённая бетонная отмостка

Снижает промерзание грунта у основания дома и отводит воду от фундамента.

Утепление мауерлата

Снижает теплопотери в зоне примыкания кровли к стенам и предотвращает образование мостиков холода.

Подшив кровельных свесов (металл)

Защищает конструкцию крыши от влаги и ветра, обеспечивая аккуратный внешний вид и вентиляцию.

Обратная подсыпка к отмостке

Формирует правильный уклон и уплотнение грунта для стабильности отмостки и отвода воды от дома.

Кольцевая дренажная система

Отводит грунтовые и поверхностные воды, предотвращая переувлажнение и давление на фундамент.

Водосточная система (металл)

Организует эффективный отвод дождевой и талой воды с кровли, защищая фасад и фундамент.

Необязательные доп.работы

Внешняя штукатурка

Защищает фасад от атмосферных воздействий и формирует аккуратный внешний вид здания.

Внутренняя штукатурка

Выравнивает стены и подготавливает поверхности под чистовую отделку.

Стяжка пола

Создаёт ровное и прочное основание под напольные покрытия и распределяет нагрузки.

Водоснабжение

Организуется подача воды с разводкой труб по всем точкам потребления.

Сантехника

Монтаж инженерных узлов и оборудования для корректной работы системы водоотведения и водопользования.

Электрические работы

Выполняется разводка электросетей с учётом безопасности и удобства эксплуатации.

Утепление кровли

Обеспечивает теплоизоляцию дома, снижает теплопотери и предотвращает образование конденсата.

Стоимость проекта

14 962 710 ₽
Проект «Линц» предлагается в базовой комплектации, которая уже включает все ключевые конструктивные элементы дома. Это полноценная строительная основа, позволяющая реализовать проект без скрытых затрат и дополнительных доработок на критических этапах.

В базовую комплектацию входят: устройство фундамента, возведение несущих стен из газобетона с обязательным армированием, устройство армопоясов и перемычек, межэтажные перекрытия, а также кровельная система со стропильной конструкцией и покрытием. Также учитываются основные конструктивные узлы, обеспечивающие прочность, устойчивость и долговечность здания.

Такой подход делает стоимость понятной и прозрачной: все базовые строительные работы уже заложены. При необходимости проект можно адаптировать под индивидуальные задачи — добавить инженерные системы, отделку или дополнительные решения, сохраняя контроль над итоговым бюджетом.

Как мы строим дом

Утепленный фундамент

Мы используем утеплённую монолитную плиту. Это надёжное и тёплое основание, которое защищает дом от потерь тепла через пол. Сначала формируется плотная песчаная подушка толщиной 40–60 см с

заранее заложенными коммуникациями. Затем заливается выравнивающий слой бетона (М100, толщина 10 см), чтобы все последующие слои легли ровно. Укладывается гидроизоляционная плёнка (150 мкм), которая защищает конструкцию от влаги. Далее монтируется утеплитель (Технониколь XPS Eco Carbon, толщина 100 мм), который не даёт фундаменту промерзать. После армирования (арматура по ГОСТ) заливается основная плита из бетона высокой прочности (М350) — в итоге получается цельное, надёжное основание под весь дом.

Стены

Далее возводятся стены из газобетона по технологии тонкошовной кладки (IstKult). Наружные стены выполняются из блоков толщиной 375 мм с плотностью D400 — это тёплый материал, который в

большинстве случаев не требует дополнительного утепления. Внутренние перегородки делаются из газобетона толщиной 150 мм (D500). Между блоками используется минимальный слой клея (около 2 мм ±1 мм), благодаря чему стены лучше сохраняют тепло. Особое внимание уделяется всем узлам — в местах окон, перекрытий и соединений стен, чтобы исключить теплопотери. Газобетон практически не даёт усадки (около 1,5 мм на этаж) и обладает хорошей прочностью (B2.5), а также высокой огнестойкостью (REI 240).

Армопояс, колоны и ригеля

Для усиления конструкции выполняется армопояс, а также при необходимости добавляются колонны и ригеля. Армопояс делается в заводских U-блоках (IstKult), что позволяет получить ровную и

аккуратную геометрию. Внутри выполняется армирование, а сами колонны заливаются из бетона класса B22,5. Ригель служит горизонтальным несущим элементом и помогает правильно распределять нагрузки. Весь этот этап делает дом более жёстким и устойчивым.

Деревянные перекрытия

Надёжное и практичное решение для частного дома, особенно при скатной кровле. Чаще всего применяются в одноэтажных домах или домах с мансардой, где нет повышенных нагрузок — это позволяет сделать конструкцию быстрее и экономичнее без потери надёжности.

Используется доска камерной сушки (КС), которая не деформируется со временем. Основные балки сечением 50×200 мм укладываются с расчётным шагом и опираются на армопояс через изоляционный слой, чтобы защитить древесину от влаги.

Все соединения выполняются с запилами — элементы точно подгоняются друг к другу, за счёт чего конструкция получается жёсткой и стабильной. Дополнительно применяются металлические крепёжные элементы для усиления узлов. Древесина обрабатывается огнебиозащитными составами, что защищает её от влаги, грибка и повышает устойчивость к возгоранию.

Газобетонное перекрытие

Применяются в случаях, когда требуется более жёсткая и устойчивая конструкция, чем деревянная — например, при полноценном втором этаже, больших пролётах или использовании тяжёлых перегородок. Такое решение позволяет избежать вибраций и делает перекрытие более стабильным в эксплуатации.

Конструкция собирается из газобетонных элементов с металлическими рёбрами жёсткости и последующей заливкой бетона. За счёт этого снижается расход материалов по сравнению с монолитом, но сохраняется необходимая прочность. Перекрытие работает как единая система вместе со стенами из газобетона, равномерно распределяя нагрузки.

Особое внимание уделяется узлам опирания, армированию и утеплению по периметру, чтобы исключить мостики холода и сохранить теплоэффективность. В результате получается прочное, стабильное и тёплое перекрытие с оптимальным балансом между стоимостью и надёжностью.

Монолитное перекрытие

Максимально прочное и жёсткое решение, которое применяется при высоких нагрузках: полноценный второй этаж, большие пролёты, сложная архитектура. Такое перекрытие полностью исключает вибрации и даёт ощущение «каменного» дома.

Конструкция выполняется по опалубке с обязательным армированием в две сетки (арматура по ГОСТ) с соблюдением защитного слоя бетона. Все узлы, проходы коммуникаций и усиления заранее закладываются до заливки, чтобы получить цельную и правильно работающую плиту. Используется заводской бетон, что гарантирует стабильное качество и прочность.

Особое внимание уделяется геометрии, уровню и равномерности армирования — это напрямую влияет на надёжность всей конструкции. По периметру прорабатывается утепление и узлы примыкания, чтобы исключить мостики холода. В результате получается монолитная плита с высокой несущей способностью, долговечностью и максимальной устойчивостью к нагрузкам.

Крыша

Завершающий несущий контур дома, который принимает на себя снеговые и ветровые нагрузки и защищает конструкцию от влаги.

Основа — стропильная система из сухой доски с обязательной огнебиозащитной обработкой. Узлы собираются с точной геометрией: выдерживаются шаг, углы запилов и линии конька, чтобы нагрузка распределялась равномерно. Все соединения выполняются на гвоздях/саморезах и усиливаются металлическими элементами в ключевых зонах.

Формируется жёсткий каркас: мауэрлат закреплён к стенам, стропила опираются правильно, дополнительно используются затяжки и распорки для исключения прогибов. Далее выполняется сплошное или разреженное основание (обрешётка/настил), подготавливается вентиляционный зазор и узлы под кровельное покрытие.

На выходе — ровная, жёсткая и геометрически точная конструкция, готовая к устройству кровли, утеплению и последующим слоям.

Кровля

Это многослойная система, которая обеспечивает герметичность, вентиляцию и долговечность всей крыши. На этом этапе конструкция окончательно защищается от осадков и перепадов температур.

Основание под кровлю подготавливается на жёстком настиле (OSB/обрешётка), после чего укладывается подкладочный гидроизоляционный ковер с герметизацией всех нахлёстов и примыканий. Особое внимание уделяется зонам риска — ендовы, карнизы, конёк и проходы через кровлю.

Далее монтируется финишное покрытие — гибкая битумная черепица. Укладка выполняется с точной геометрией рядов, соблюдением шагов крепления и температурных режимов, что обеспечивает плотное прилегание и защиту от ветровых нагрузок. Формируются аккуратные узлы коньков и ребер.

Инженерные элементы интегрируются в кровлю:
— вентиляционные выходы для подкровельного пространства,
— аэраторы для удаления влаги и продления срока службы конструкции,
— герметичные проходы через кровлю.

Примыкания (в том числе к дымоходам) выполняются с использованием металлических фартуков и герметиков, исключающих протечки. Дополнительно устанавливается водосточная система и элементы безопасности/эксплуатации кровли.

Результат — полностью герметичная, вентилируемая и эстетически завершённая кровля, готовая к эксплуатации в любых погодных условиях.

Вопросы и ответы

Шаблон проекта
Какого размера участок подойдёт для этого дома?

Для проекта «Линц» рекомендуется участок от 10 соток. Дом имеет достаточно крупные габариты и встроенный гараж, поэтому важно предусмотреть место для подъезда, парковки и зоны отдыха. При грамотной посадке дом хорошо вписывается даже в стандартные участки.

Дом комфортно рассчитан на семью из 4–6 человек. Четыре спальни позволяют каждому члену семьи иметь личное пространство, а при необходимости одну из комнат можно использовать как гостевую. Также дом отлично подходит для тех, кто часто принимает гостей.

Ключевые особенности — это встроенный гараж с прямым доступом в дом и отдельный кабинет. Также стоит отметить чёткое разделение этажей по функциям и наличие трёх санузлов. Планировка дополнена кладовой и котельной, что делает дом максимально удобным в эксплуатации.

Да, проект полностью адаптирован для постоянного проживания. Внешние стены из газобетона толщиной 375 мм обеспечивают хорошую теплоизоляцию, что позволяет сохранять тепло зимой и комфортную температуру летом. При правильно реализованных инженерных системах дом будет энергоэффективным и удобным в эксплуатации круглый год.

Да, проект допускает адаптацию под индивидуальные задачи. Можно изменить назначение помещений, перераспределить площади, например увеличить кухню-гостиную, выделить кабинет или доработать гардеробные зоны. При этом важно учитывать конструктивную схему дома, чтобы изменения не повлияли на надёжность и экономику строительства.

Индивидуальные
изменения проекта

  • Можно изменить планировку
  • Можно увеличить площадь
  • Можно изменить внешний вид
  • Можно адаптировать под участок

Оставьте имя и телефон что бы обсудить
индивидуальные изменения

Отправляя данную форму вы соглашаетесь с политикой обработки персональных данных.

Похожие проекты

Рекомендуем

Подбор дома по особеностям