Мы используем cookie-файлы
для оптимизации работы сайта.

Проект дома 236 м² — одноэтажный из газобетона «Рига»

Проект дома 236 м² — одноэтажный из газобетона
«Рига»
Проект дома может меняться
в зависимости от ваших предпочтений
Проект дома 236 м² — одноэтажный из газобетона
«Рига»
Проект дома может меняться
в зависимости от ваших предпочтений
14 165 153 ₽
Стоимость
от 17.04.2026
Актуальную стоимость
уточняйте у менеджера
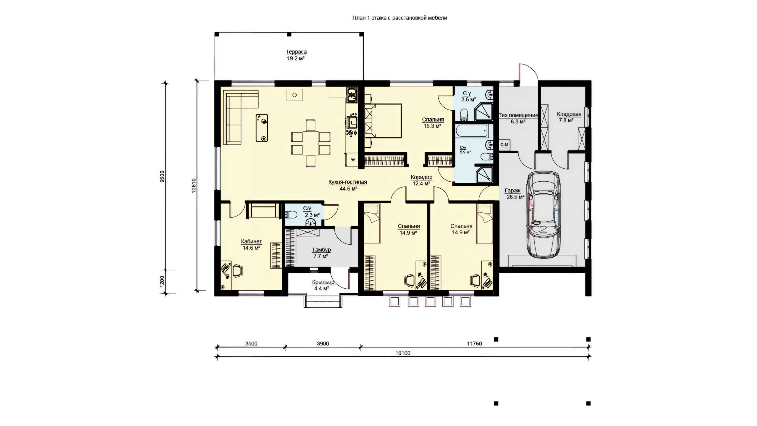
  • Жилая площадьЖилая площадь137.2 м²
  • Общая площадьОбщая площадь236 м²
  • Кол-во спаленКол-во спален3
  • Кол-во сан узловКол-во сан узлов3
  • Габариты домаГабариты дома19,5 x 10,8 м
  • Кол-во этажейКол-во этажей1
  • Сроки строительства120 дней
  • Возможность изменить проектДа
  • Круглогодичное проживаниеДа
  • Материал стен\перегородокГазобетонные блоки
  • Тип фундаментаУтепленный, плитный
  • Толщина внешних стен375 мм
  • Толщина перегородок150 мм

Описание

Проект «Рига» — это просторный одноэтажный дом площадью 236 м² с габаритами 19,5 × 10,8 м, где основной акцент сделан на удобстве жизни без лестниц и продуманной логике всех помещений. Планировка вытянутая, но сбалансированная: общественная зона с кухней-гостиной занимает центральное место и логично связана с остальными помещениями, без лишних коридоров и «пустых» метров.

Кухня-гостиная — это полноценное ядро дома: здесь достаточно пространства и для готовки, и для отдыха, и для приёма гостей. Три спальни формируют приватную зону, где можно выделить мастер-спальню и отдельные комнаты для детей или гостей. Дополнительно предусмотрен кабинет — изолированное помещение для работы или личных задач. Кладовая решает вопрос хранения, а наличие сразу двух форм парковки — гаража и навеса — делает дом максимально удобным в эксплуатации.

Преимущества планировки

Главное преимущество — сочетание одноэтажного комфорта и функциональности большого дома. Все помещения находятся на одном уровне, что упрощает перемещение и делает дом удобным для жизни на долгие годы. При этом площадь позволяет не экономить на зонах: есть отдельный кабинет, полноценная кухня-гостиная и три спальни без компромиссов по размеру.

Особенно сильное решение — комбинация гаража и навеса. Это гибкая система парковки: одна машина находится в закрытом и защищённом пространстве, вторая — под навесом, без увеличения объёма строительства. При этом гараж можно использовать не только для авто, но и как место хранения инструментов и инвентаря.

Кладовая и продуманные зоны хранения разгружают жилые помещения. В результате кухня остаётся чистой и функциональной, а спальни — свободными от лишней мебели. Это напрямую влияет на удобство и восприятие пространства.

Комплектация проекта

Комплектация

Черновик

Утепленная фундаментая плита

  • Песчаная подушка т=40-60см с утеплёнными коммуникациями
  • Подбетонка, бетон марки М100, т=10см
  • Гидроизоляция, плёнка 150мкм
  • Утеплитель Технониколь xps eco carbon, т= 100мм
  • Фундаментная плита, бетон марки М350
Черновик

Стены

  • стены газобетон IstKult, толщина т=375мм, плотность D400
  • перегородки газобетон IstKult, толщина т=150мм, плотность D500
Черновик

Армопояс, колоны и ригеля

  • Армопояс в U-блок IstKult
  • Монолитные колонны. Бетон В22,5
  • Ригель — горизонтальный несущий элемент конструкции
Черновик

Перекрытие

В зависимости от типа проекта :

  • Балочные (Из дерева)
  • Газобетоные
  • Монолитное
Черновик

Крыша

  • Брус 50х150 (Стыковка через запил)
  • Обрезная доска для стропил
  • Бруски для контр обрешетки
  • Крепежные элементы
  • Изоляция: Гидро-ветрозащитная
  • Антисептики для защиты древесины
Черновик

Кровля

  • Гибкая черепица

Доп.работы

Утеплённая бетонная отмостка

Снижает промерзание грунта у основания дома и отводит воду от фундамента.

Утепление мауерлата

Снижает теплопотери в зоне примыкания кровли к стенам и предотвращает образование мостиков холода.

Подшив кровельных свесов (металл)

Защищает конструкцию крыши от влаги и ветра, обеспечивая аккуратный внешний вид и вентиляцию.

Обратная подсыпка к отмостке

Формирует правильный уклон и уплотнение грунта для стабильности отмостки и отвода воды от дома.

Кольцевая дренажная система

Отводит грунтовые и поверхностные воды, предотвращая переувлажнение и давление на фундамент.

Водосточная система (металл)

Организует эффективный отвод дождевой и талой воды с кровли, защищая фасад и фундамент.

Необязательные доп.работы

Внешняя штукатурка

Защищает фасад от атмосферных воздействий и формирует аккуратный внешний вид здания.

Внутренняя штукатурка

Выравнивает стены и подготавливает поверхности под чистовую отделку.

Стяжка пола

Создаёт ровное и прочное основание под напольные покрытия и распределяет нагрузки.

Водоснабжение

Организуется подача воды с разводкой труб по всем точкам потребления.

Сантехника

Монтаж инженерных узлов и оборудования для корректной работы системы водоотведения и водопользования.

Электрические работы

Выполняется разводка электросетей с учётом безопасности и удобства эксплуатации.

Утепление кровли

Обеспечивает теплоизоляцию дома, снижает теплопотери и предотвращает образование конденсата.

Стоимость проекта

14 165 153 ₽
Стоимость проекта формируется на основе базовой комплектации, которая уже включает все ключевые конструктивные элементы. Это фундамент, стены из газобетона с необходимыми теплотехническими характеристиками, перекрытия, кровля с утеплением и гидроизоляцией, а также базовая подготовка под инженерные системы.

В одноэтажных домах особое внимание уделяется фундаменту и кровле, так как они формируют основную конструктивную нагрузку. В проекте заложены решения, обеспечивающие герметичность, отсутствие мостиков холода и стабильную теплоизоляцию по всему контуру.

Дополнительно учитываются такие элементы, как гараж и навес — они интегрированы в проект с учётом удобства и долговечности. Итоговая стоимость может варьироваться в зависимости от выбранных материалов и инженерных решений, но базовая комплектация уже даёт надёжный и продуманный дом.

Как мы строим дом

Утепленный фундамент

Мы используем утеплённую монолитную плиту. Это надёжное и тёплое основание, которое защищает дом от потерь тепла через пол. Сначала формируется плотная песчаная подушка толщиной 40–60 см с

заранее заложенными коммуникациями. Затем заливается выравнивающий слой бетона (М100, толщина 10 см), чтобы все последующие слои легли ровно. Укладывается гидроизоляционная плёнка (150 мкм), которая защищает конструкцию от влаги. Далее монтируется утеплитель (Технониколь XPS Eco Carbon, толщина 100 мм), который не даёт фундаменту промерзать. После армирования (арматура по ГОСТ) заливается основная плита из бетона высокой прочности (М350) — в итоге получается цельное, надёжное основание под весь дом.

Стены

Далее возводятся стены из газобетона по технологии тонкошовной кладки (IstKult). Наружные стены выполняются из блоков толщиной 375 мм с плотностью D400 — это тёплый материал, который в

большинстве случаев не требует дополнительного утепления. Внутренние перегородки делаются из газобетона толщиной 150 мм (D500). Между блоками используется минимальный слой клея (около 2 мм ±1 мм), благодаря чему стены лучше сохраняют тепло. Особое внимание уделяется всем узлам — в местах окон, перекрытий и соединений стен, чтобы исключить теплопотери. Газобетон практически не даёт усадки (около 1,5 мм на этаж) и обладает хорошей прочностью (B2.5), а также высокой огнестойкостью (REI 240).

Армопояс, колоны и ригеля

Для усиления конструкции выполняется армопояс, а также при необходимости добавляются колонны и ригеля. Армопояс делается в заводских U-блоках (IstKult), что позволяет получить ровную и

аккуратную геометрию. Внутри выполняется армирование, а сами колонны заливаются из бетона класса B22,5. Ригель служит горизонтальным несущим элементом и помогает правильно распределять нагрузки. Весь этот этап делает дом более жёстким и устойчивым.

Деревянные перекрытия

Надёжное и практичное решение для частного дома, особенно при скатной кровле. Чаще всего применяются в одноэтажных домах или домах с мансардой, где нет повышенных нагрузок — это позволяет сделать конструкцию быстрее и экономичнее без потери надёжности.

Используется доска камерной сушки (КС), которая не деформируется со временем. Основные балки сечением 50×200 мм укладываются с расчётным шагом и опираются на армопояс через изоляционный слой, чтобы защитить древесину от влаги.

Все соединения выполняются с запилами — элементы точно подгоняются друг к другу, за счёт чего конструкция получается жёсткой и стабильной. Дополнительно применяются металлические крепёжные элементы для усиления узлов. Древесина обрабатывается огнебиозащитными составами, что защищает её от влаги, грибка и повышает устойчивость к возгоранию.

Газобетонное перекрытие

Применяются в случаях, когда требуется более жёсткая и устойчивая конструкция, чем деревянная — например, при полноценном втором этаже, больших пролётах или использовании тяжёлых перегородок. Такое решение позволяет избежать вибраций и делает перекрытие более стабильным в эксплуатации.

Конструкция собирается из газобетонных элементов с металлическими рёбрами жёсткости и последующей заливкой бетона. За счёт этого снижается расход материалов по сравнению с монолитом, но сохраняется необходимая прочность. Перекрытие работает как единая система вместе со стенами из газобетона, равномерно распределяя нагрузки.

Особое внимание уделяется узлам опирания, армированию и утеплению по периметру, чтобы исключить мостики холода и сохранить теплоэффективность. В результате получается прочное, стабильное и тёплое перекрытие с оптимальным балансом между стоимостью и надёжностью.

Монолитное перекрытие

Максимально прочное и жёсткое решение, которое применяется при высоких нагрузках: полноценный второй этаж, большие пролёты, сложная архитектура. Такое перекрытие полностью исключает вибрации и даёт ощущение «каменного» дома.

Конструкция выполняется по опалубке с обязательным армированием в две сетки (арматура по ГОСТ) с соблюдением защитного слоя бетона. Все узлы, проходы коммуникаций и усиления заранее закладываются до заливки, чтобы получить цельную и правильно работающую плиту. Используется заводской бетон, что гарантирует стабильное качество и прочность.

Особое внимание уделяется геометрии, уровню и равномерности армирования — это напрямую влияет на надёжность всей конструкции. По периметру прорабатывается утепление и узлы примыкания, чтобы исключить мостики холода. В результате получается монолитная плита с высокой несущей способностью, долговечностью и максимальной устойчивостью к нагрузкам.

Крыша

Завершающий несущий контур дома, который принимает на себя снеговые и ветровые нагрузки и защищает конструкцию от влаги.

Основа — стропильная система из сухой доски с обязательной огнебиозащитной обработкой. Узлы собираются с точной геометрией: выдерживаются шаг, углы запилов и линии конька, чтобы нагрузка распределялась равномерно. Все соединения выполняются на гвоздях/саморезах и усиливаются металлическими элементами в ключевых зонах.

Формируется жёсткий каркас: мауэрлат закреплён к стенам, стропила опираются правильно, дополнительно используются затяжки и распорки для исключения прогибов. Далее выполняется сплошное или разреженное основание (обрешётка/настил), подготавливается вентиляционный зазор и узлы под кровельное покрытие.

На выходе — ровная, жёсткая и геометрически точная конструкция, готовая к устройству кровли, утеплению и последующим слоям.

Кровля

Это многослойная система, которая обеспечивает герметичность, вентиляцию и долговечность всей крыши. На этом этапе конструкция окончательно защищается от осадков и перепадов температур.

Основание под кровлю подготавливается на жёстком настиле (OSB/обрешётка), после чего укладывается подкладочный гидроизоляционный ковер с герметизацией всех нахлёстов и примыканий. Особое внимание уделяется зонам риска — ендовы, карнизы, конёк и проходы через кровлю.

Далее монтируется финишное покрытие — гибкая битумная черепица. Укладка выполняется с точной геометрией рядов, соблюдением шагов крепления и температурных режимов, что обеспечивает плотное прилегание и защиту от ветровых нагрузок. Формируются аккуратные узлы коньков и ребер.

Инженерные элементы интегрируются в кровлю:
— вентиляционные выходы для подкровельного пространства,
— аэраторы для удаления влаги и продления срока службы конструкции,
— герметичные проходы через кровлю.

Примыкания (в том числе к дымоходам) выполняются с использованием металлических фартуков и герметиков, исключающих протечки. Дополнительно устанавливается водосточная система и элементы безопасности/эксплуатации кровли.

Результат — полностью герметичная, вентилируемая и эстетически завершённая кровля, готовая к эксплуатации в любых погодных условиях.

Вопросы и ответы

Шаблон проекта
Какого размера участок подойдёт под этот дом?

Рекомендуемый участок — от 10–12 соток. Дом имеет большую длину (19,5 м), поэтому важно не только разместить его, но и сохранить пространство под подъезд, парковку и зону отдыха. Особенно важно учесть размещение гаража и навеса — для удобного заезда требуется продуманная логистика участка. На узких или маленьких участках такой дом может ограничить функциональность двора.

Оптимально — 3–5 человек. Три спальни позволяют организовать мастер-зону для родителей и отдельные комнаты для детей или гостей. Кабинет при необходимости может использоваться как дополнительная спальня. Это даёт гибкость без перегрузки пространства.

Это как раз грамотное решение. Гараж используется для основной машины, хранения инструментов и вещей, а навес — для второй машины или временной парковки. Это удобнее, чем строить второй гараж: меньше затрат, проще конструкция и меньше нагрузка на тепловой контур дома. В реальной эксплуатации такая схема оказывается максимально практичной.

Отсутствие лестницы упрощает жизнь: нет перепадов уровней, легче перемещаться, безопаснее для детей и взрослых. Все помещения находятся в одной плоскости, что делает дом более логичным и удобным. В долгосрочной перспективе это один из самых комфортных форматов.

Нет, если соблюдена технология. Гараж отделяется от жилой части утеплёнными конструкциями и герметичными узлами. Это исключает теплопотери и проникновение холодного воздуха. Также предусматривается вентиляция, чтобы исключить влагу и запахи.

Да, проект полностью адаптирован для постоянного проживания. Внешние стены из газобетона толщиной 375 мм обеспечивают хорошую теплоизоляцию, что позволяет сохранять тепло зимой и комфортную температуру летом. При правильно реализованных инженерных системах дом будет энергоэффективным и удобным в эксплуатации круглый год.

Да, проект допускает адаптацию под индивидуальные задачи. Можно изменить назначение помещений, перераспределить площади, например увеличить кухню-гостиную, выделить кабинет или доработать гардеробные зоны. При этом важно учитывать конструктивную схему дома, чтобы изменения не повлияли на надёжность и экономику строительства.

Индивидуальные
изменения проекта

  • Можно изменить планировку
  • Можно увеличить площадь
  • Можно изменить внешний вид
  • Можно адаптировать под участок

Оставьте имя и телефон что бы обсудить
индивидуальные изменения

Отправляя данную форму вы соглашаетесь с политикой обработки персональных данных.

Похожие проекты

Рекомендуем

Подбор дома по особеностям