Мы используем cookie-файлы
для оптимизации работы сайта.

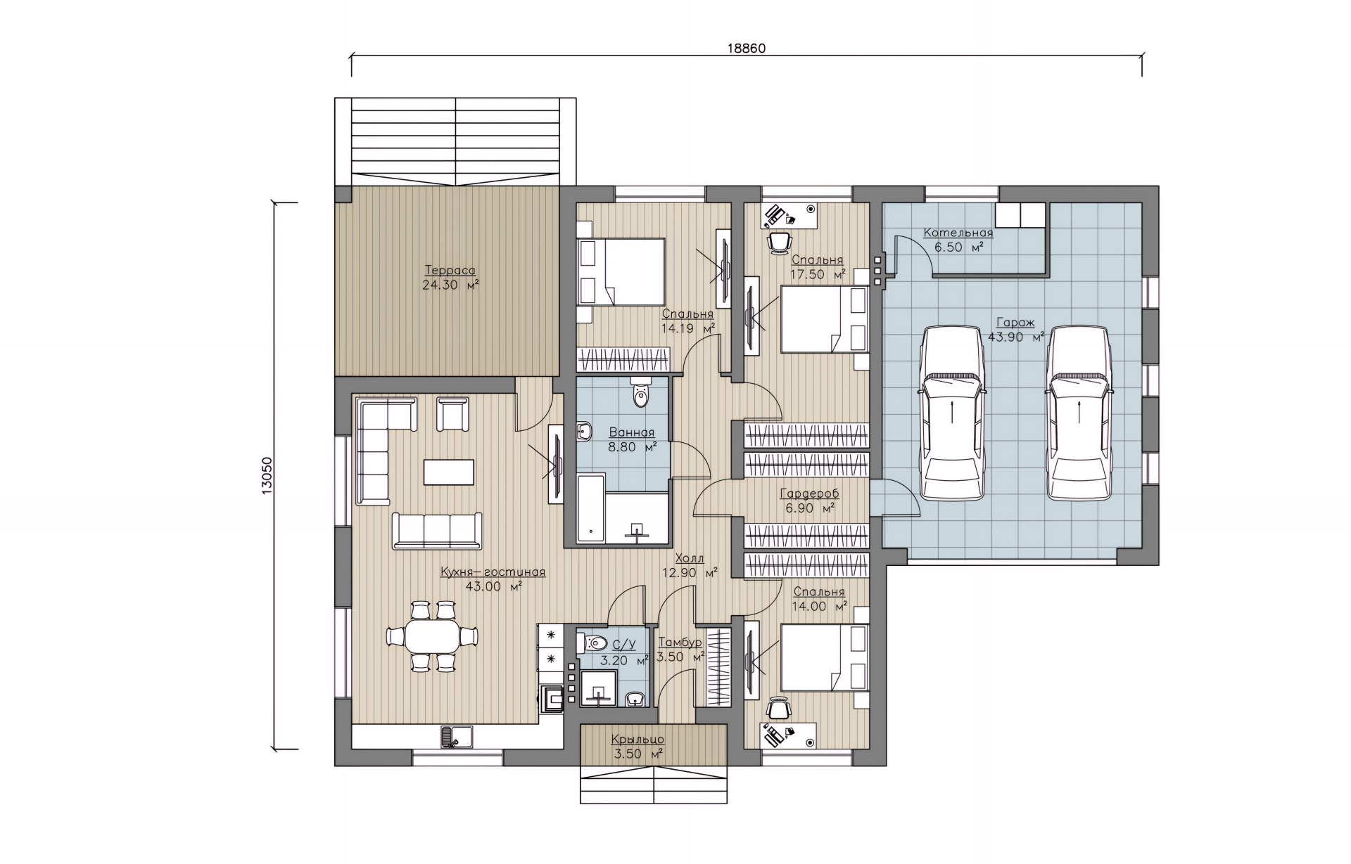
Проект дома 241 м² — одноэтажный из газобетона «Мадрид»

Проект дома 241 м² — одноэтажный из газобетона
«Мадрид»
Проект дома может меняться
в зависимости от ваших предпочтений
Проект дома 241 м² — одноэтажный из газобетона
«Мадрид»
Проект дома может меняться
в зависимости от ваших предпочтений
14 042 464 ₽
Стоимость
от 17.04.2026
Актуальную стоимость
уточняйте у менеджера
  • Жилая площадьЖилая площадь126.6 м²
  • Общая площадьОбщая площадь241 м²
  • Кол-во спаленКол-во спален2
  • Кол-во сан узловКол-во сан узлов2
  • Габариты домаГабариты дома19,6 x 13,9 м
  • Кол-во этажейКол-во этажей1
  • Сроки строительства120 дней

Описание

Проект одноэтажного дома из газобетона «Мадрид» площадью 241 м² — это просторный дом в классическом стиле, ориентированный на комфортное проживание без ограничений по пространству. Габариты 19,6 × 13,9 м требуют участка средней или большой площади, но взамен дают удобную, «расправленную» планировку без узких мест и лишних переходов. Архитектура дома спокойная и универсальная, без сложных форм, что делает его практичным как в строительстве, так и в эксплуатации.

Основное пространство дома — большая кухня-гостиная площадью 43 м² с крупными окнами и выходом на террасу 24,3 м². Это центр всей жизни: здесь удобно готовить, принимать гостей и проводить время с семьёй. Терраса логично продолжает жилую зону и используется как полноценное дополнительное пространство в тёплый сезон.

В доме предусмотрены три спальни, два санузла (включая полноценную ванную комнату), гардеробная и отдельная котельная. Планировка выстроена без «мертвых» зон, все помещения имеют нормальные размеры и удобную связь между собой. Отдельное преимущество — встроенный гараж на два автомобиля с прямым доступом в дом, что особенно важно в холодное время года.

Преимущества планировки

Одноэтажный формат полностью исключает лестницы, что делает дом максимально удобным для постоянного проживания, особенно в долгосрочной перспективе. Все помещения находятся на одном уровне, за счёт чего сокращается время на перемещения и упрощается повседневная жизнь.

Кухня-гостиная выступает единым функциональным пространством, где объединены основные сценарии — готовка, отдых и общение. При этом спальни вынесены в отдельную часть дома, что обеспечивает тишину и приватность. Наличие двух санузлов решает вопрос утренней и вечерней нагрузки, а гардеробная позволяет не перегружать комнаты шкафами.

Встроенный гараж на два автомобиля — практичное решение, которое экономит место на участке и защищает машины от погодных условий. Прямой вход в дом из гаража повышает комфорт, особенно зимой или в дождливую погоду.

Большая площадь дома распределена рационально: нет длинных коридоров, помещения не «сжаты», и дом ощущается просторным без потерь полезной площади.

Комплектация проекта

Комплектация

Черновик

Утепленная фундаментая плита

  • Песчаная подушка т=40-60см с утеплёнными коммуникациями
  • Подбетонка, бетон марки М100, т=10см
  • Гидроизоляция, плёнка 150мкм
  • Утеплитель Технониколь xps eco carbon, т= 100мм
  • Фундаментная плита, бетон марки М350
Черновик

Стены

  • стены газобетон IstKult, толщина т=375мм, плотность D400
  • перегородки газобетон IstKult, толщина т=150мм, плотность D500
Черновик

Армопояс, колоны и ригеля

  • Армопояс в U-блок IstKult
  • Монолитные колонны. Бетон В22,5
  • Ригель — горизонтальный несущий элемент конструкции
Черновик

Перекрытие

В зависимости от типа проекта :

  • Балочные (Из дерева)
  • Газобетоные
  • Монолитное
Черновик

Крыша

  • Брус 50х150 (Стыковка через запил)
  • Обрезная доска для стропил
  • Бруски для контр обрешетки
  • Крепежные элементы
  • Изоляция: Гидро-ветрозащитная
  • Антисептики для защиты древесины
Черновик

Кровля

  • Гибкая черепица

Доп.работы

Утеплённая бетонная отмостка

Снижает промерзание грунта у основания дома и отводит воду от фундамента.

Утепление мауерлата

Снижает теплопотери в зоне примыкания кровли к стенам и предотвращает образование мостиков холода.

Подшив кровельных свесов (металл)

Защищает конструкцию крыши от влаги и ветра, обеспечивая аккуратный внешний вид и вентиляцию.

Обратная подсыпка к отмостке

Формирует правильный уклон и уплотнение грунта для стабильности отмостки и отвода воды от дома.

Кольцевая дренажная система

Отводит грунтовые и поверхностные воды, предотвращая переувлажнение и давление на фундамент.

Водосточная система (металл)

Организует эффективный отвод дождевой и талой воды с кровли, защищая фасад и фундамент.

Необязательные доп.работы

Внешняя штукатурка

Защищает фасад от атмосферных воздействий и формирует аккуратный внешний вид здания.

Внутренняя штукатурка

Выравнивает стены и подготавливает поверхности под чистовую отделку.

Стяжка пола

Создаёт ровное и прочное основание под напольные покрытия и распределяет нагрузки.

Водоснабжение

Организуется подача воды с разводкой труб по всем точкам потребления.

Сантехника

Монтаж инженерных узлов и оборудования для корректной работы системы водоотведения и водопользования.

Электрические работы

Выполняется разводка электросетей с учётом безопасности и удобства эксплуатации.

Утепление кровли

Обеспечивает теплоизоляцию дома, снижает теплопотери и предотвращает образование конденсата.

Стоимость проекта

Итоговая стоимость 
на 20260415
14 042 464 ₽
Стоимость проекта дома «Мадрид» составляет 14 042 464 ₽. Это дом более высокого класса за счёт увеличенной площади, наличия встроенного гаража на два автомобиля и просторной кухни-гостиной. При этом проект остаётся рациональным: конструкция без сложных архитектурных решений позволяет контролировать затраты на строительство и не переплачивать за избыточные элементы.
Основная часть стоимости формируется за счёт площади и функционала, а не за счёт декоративных или сложных конструктивных решений. В результате заказчик получает большой, удобный дом с понятной планировкой, рассчитанный на комфортное проживание без необходимости доработок.

Как мы строим дом

Утепленный фундамент

Мы используем утеплённую монолитную плиту. Это надёжное и тёплое основание, которое защищает дом от потерь тепла через пол. Сначала формируется плотная песчаная подушка толщиной 40–60 см с

заранее заложенными коммуникациями. Затем заливается выравнивающий слой бетона (М100, толщина 10 см), чтобы все последующие слои легли ровно. Укладывается гидроизоляционная плёнка (150 мкм), которая защищает конструкцию от влаги. Далее монтируется утеплитель (Технониколь XPS Eco Carbon, толщина 100 мм), который не даёт фундаменту промерзать. После армирования (арматура по ГОСТ) заливается основная плита из бетона высокой прочности (М350) — в итоге получается цельное, надёжное основание под весь дом.

Стены

Далее возводятся стены из газобетона по технологии тонкошовной кладки (IstKult). Наружные стены выполняются из блоков толщиной 375 мм с плотностью D400 — это тёплый материал, который в

большинстве случаев не требует дополнительного утепления. Внутренние перегородки делаются из газобетона толщиной 150 мм (D500). Между блоками используется минимальный слой клея (около 2 мм ±1 мм), благодаря чему стены лучше сохраняют тепло. Особое внимание уделяется всем узлам — в местах окон, перекрытий и соединений стен, чтобы исключить теплопотери. Газобетон практически не даёт усадки (около 1,5 мм на этаж) и обладает хорошей прочностью (B2.5), а также высокой огнестойкостью (REI 240).

Армопояс, колоны и ригеля

Для усиления конструкции выполняется армопояс, а также при необходимости добавляются колонны и ригеля. Армопояс делается в заводских U-блоках (IstKult), что позволяет получить ровную и

аккуратную геометрию. Внутри выполняется армирование, а сами колонны заливаются из бетона класса B22,5. Ригель служит горизонтальным несущим элементом и помогает правильно распределять нагрузки. Весь этот этап делает дом более жёстким и устойчивым.

Деревянные перекрытия

Надёжное и практичное решение для частного дома, особенно при скатной кровле. Чаще всего применяются в одноэтажных домах или домах с мансардой, где нет повышенных нагрузок — это позволяет сделать конструкцию быстрее и экономичнее без потери надёжности.

Используется доска камерной сушки (КС), которая не деформируется со временем. Основные балки сечением 50×200 мм укладываются с расчётным шагом и опираются на армопояс через изоляционный слой, чтобы защитить древесину от влаги.

Все соединения выполняются с запилами — элементы точно подгоняются друг к другу, за счёт чего конструкция получается жёсткой и стабильной. Дополнительно применяются металлические крепёжные элементы для усиления узлов. Древесина обрабатывается огнебиозащитными составами, что защищает её от влаги, грибка и повышает устойчивость к возгоранию.

Газобетонное перекрытие

Применяются в случаях, когда требуется более жёсткая и устойчивая конструкция, чем деревянная — например, при полноценном втором этаже, больших пролётах или использовании тяжёлых перегородок. Такое решение позволяет избежать вибраций и делает перекрытие более стабильным в эксплуатации.

Конструкция собирается из газобетонных элементов с металлическими рёбрами жёсткости и последующей заливкой бетона. За счёт этого снижается расход материалов по сравнению с монолитом, но сохраняется необходимая прочность. Перекрытие работает как единая система вместе со стенами из газобетона, равномерно распределяя нагрузки.

Особое внимание уделяется узлам опирания, армированию и утеплению по периметру, чтобы исключить мостики холода и сохранить теплоэффективность. В результате получается прочное, стабильное и тёплое перекрытие с оптимальным балансом между стоимостью и надёжностью.

Монолитное перекрытие

Максимально прочное и жёсткое решение, которое применяется при высоких нагрузках: полноценный второй этаж, большие пролёты, сложная архитектура. Такое перекрытие полностью исключает вибрации и даёт ощущение «каменного» дома.

Конструкция выполняется по опалубке с обязательным армированием в две сетки (арматура по ГОСТ) с соблюдением защитного слоя бетона. Все узлы, проходы коммуникаций и усиления заранее закладываются до заливки, чтобы получить цельную и правильно работающую плиту. Используется заводской бетон, что гарантирует стабильное качество и прочность.

Особое внимание уделяется геометрии, уровню и равномерности армирования — это напрямую влияет на надёжность всей конструкции. По периметру прорабатывается утепление и узлы примыкания, чтобы исключить мостики холода. В результате получается монолитная плита с высокой несущей способностью, долговечностью и максимальной устойчивостью к нагрузкам.

Крыша

Завершающий несущий контур дома, который принимает на себя снеговые и ветровые нагрузки и защищает конструкцию от влаги.

Основа — стропильная система из сухой доски с обязательной огнебиозащитной обработкой. Узлы собираются с точной геометрией: выдерживаются шаг, углы запилов и линии конька, чтобы нагрузка распределялась равномерно. Все соединения выполняются на гвоздях/саморезах и усиливаются металлическими элементами в ключевых зонах.

Формируется жёсткий каркас: мауэрлат закреплён к стенам, стропила опираются правильно, дополнительно используются затяжки и распорки для исключения прогибов. Далее выполняется сплошное или разреженное основание (обрешётка/настил), подготавливается вентиляционный зазор и узлы под кровельное покрытие.

На выходе — ровная, жёсткая и геометрически точная конструкция, готовая к устройству кровли, утеплению и последующим слоям.

Кровля

Это многослойная система, которая обеспечивает герметичность, вентиляцию и долговечность всей крыши. На этом этапе конструкция окончательно защищается от осадков и перепадов температур.

Основание под кровлю подготавливается на жёстком настиле (OSB/обрешётка), после чего укладывается подкладочный гидроизоляционный ковер с герметизацией всех нахлёстов и примыканий. Особое внимание уделяется зонам риска — ендовы, карнизы, конёк и проходы через кровлю.

Далее монтируется финишное покрытие — гибкая битумная черепица. Укладка выполняется с точной геометрией рядов, соблюдением шагов крепления и температурных режимов, что обеспечивает плотное прилегание и защиту от ветровых нагрузок. Формируются аккуратные узлы коньков и ребер.

Инженерные элементы интегрируются в кровлю:
— вентиляционные выходы для подкровельного пространства,
— аэраторы для удаления влаги и продления срока службы конструкции,
— герметичные проходы через кровлю.

Примыкания (в том числе к дымоходам) выполняются с использованием металлических фартуков и герметиков, исключающих протечки. Дополнительно устанавливается водосточная система и элементы безопасности/эксплуатации кровли.

Результат — полностью герметичная, вентилируемая и эстетически завершённая кровля, готовая к эксплуатации в любых погодных условиях.

Индивидуальные
изменения проекта

  • Можно изменить планировку
  • Можно увеличить площадь
  • Можно изменить внешний вид
  • Можно адаптировать под участок

Оставьте имя и телефон что бы обсудить
индивидуальные изменения

Отправляя данную форму вы соглашаетесь с политикой обработки персональных данных.

Вопросы и ответы

Шаблон проекта
Подойдёт ли этот дом для постоянного проживания семьи?

Да, дом рассчитан на постоянное проживание в холодном климате. Стены из газобетона толщиной 350 мм обеспечивают достаточную теплоизоляцию, чтобы дом не промерзал при правильной отделке и утеплении узлов. Газобетон сам по себе обладает низкой теплопроводностью, хорошо удерживает тепло внутри и не даёт стенам быстро остывать. При установке качественных окон и нормальной системе отопления дом остаётся тёплым зимой и не требует избыточных затрат на обогрев.

Гараж на два автомобиля с прямым входом в дом значительно повышает комфорт. Не нужно выходить на улицу в плохую погоду, удобно заносить покупки, а сами машины защищены от холода, осадков и солнца.

Несмотря на площадь 241 м², планировка сделана без лишних помещений. Все зоны используются в повседневной жизни, а простор достигается за счёт нормальных размеров комнат, а не «пустых» площадей.

Дом требует участок от 10–12 соток для комфортного размещения с учётом габаритов и подъезда к гаражу. На меньших участках возможны ограничения по размещению и благоустройству.

Одноэтажный дом удобнее в повседневной жизни за счёт отсутствия лестниц и расположения всех помещений на одном уровне. Это безопаснее и проще в эксплуатации. Минус — требуется больше площади застройки и, соответственно, участок должен быть больше.

Похожие проекты

Рекомендуем

Подбор дома по особеностям