Мы используем cookie-файлы
для оптимизации работы сайта.

Проект дома 214 м² — двухэтажный из газобетона «Атэн»

Проект дома 214 м² — двухэтажный из газобетона
«Атэн»
Проект дома может меняться
в зависимости от ваших предпочтений
Проект дома 214 м² — двухэтажный из газобетона
«Атэн»
Проект дома может меняться
в зависимости от ваших предпочтений
14 368 175 ₽
Стоимость
от 19.04.2026
Актуальную стоимость
уточняйте у менеджера
  • Жилая площадьЖилая площадь131.5 м²
  • Общая площадьОбщая площадь214 м²
  • Кол-во спаленКол-во спален4
  • Кол-во сан узловКол-во сан узлов2
  • Габариты домаГабариты дома12,3 x 6,7 м
  • Кол-во этажейКол-во этажей2
  • Сроки строительства120 дней
  • Возможность изменить проектДа
  • Круглогодичное проживаниеДа
  • Материал стен\перегородокГазобетонные блоки
  • Тип фундаментаУтепленный, плитный
  • Толщина внешних стен375 мм
  • Толщина перегородок150 мм

Описание

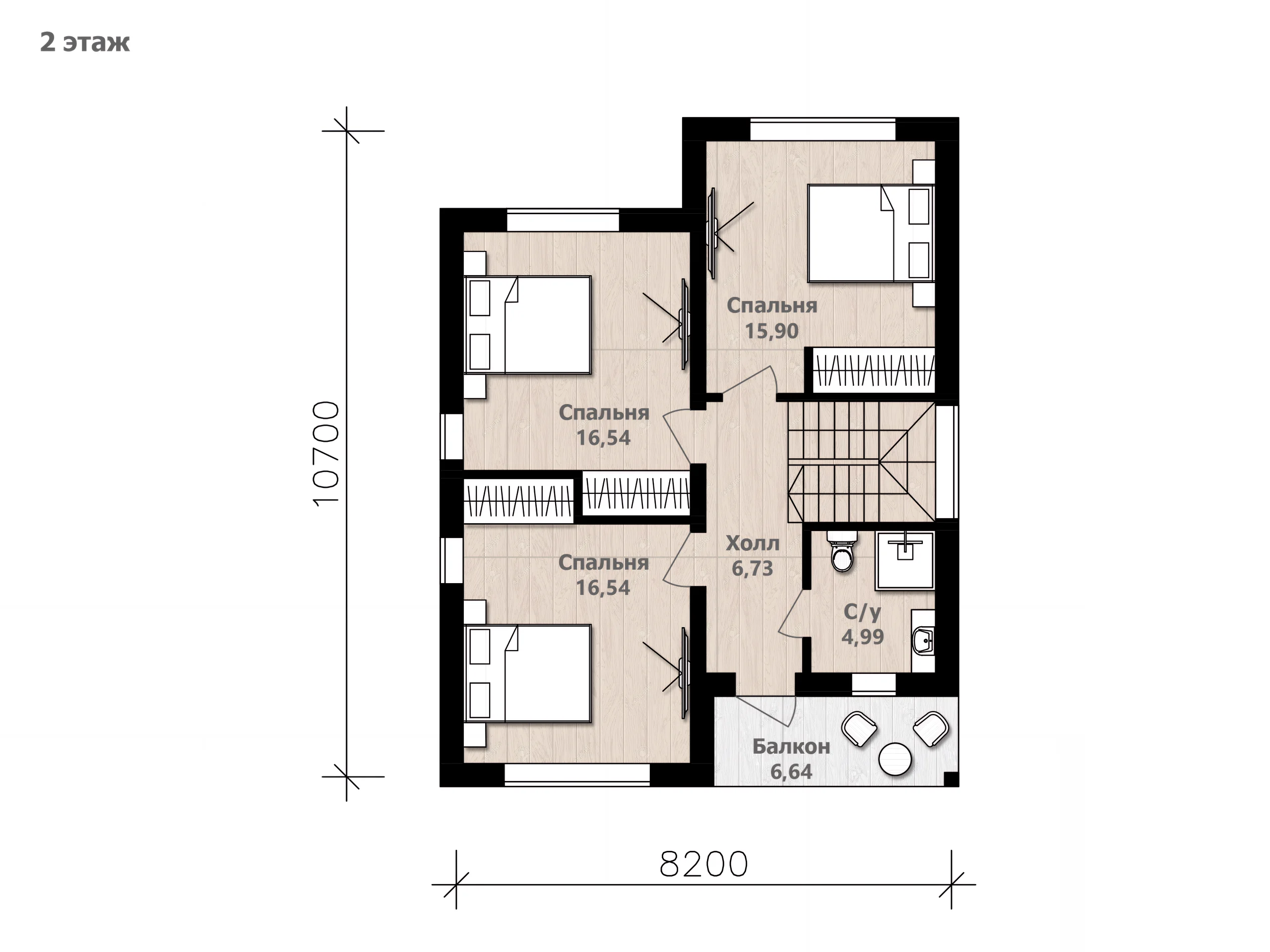
Проект «Атэн» — это двухэтажный дом общей площадью 214 м², в котором грамотно реализована идея «максимум возможностей на разумной площади». При относительно компактных габаритах 12,3 × 10,7 м дом даёт полноценный набор функций для семьи: четыре спальни, два санузла, гараж и просторную общую зону. Это формат, где нет лишних метров, но есть всё необходимое для комфортной жизни.

Центром дома выступает кухня-гостиная — единое пространство, рассчитанное на ежедневное использование. Здесь достаточно места и для семейных ужинов, и для приёма гостей, при этом помещение не перегружено и остаётся удобным для повседневной жизни. За счёт правильной геометрии легко расставляется мебель, сохраняется свободное движение и визуальный порядок.

Второй этаж полностью отдан под приватную зону. Четыре спальни позволяют гибко распределить пространство: мастер-спальня для родителей, комнаты для детей и дополнительная спальня под гостей или кабинет. Балкон дополняет эту зону, создавая отдельное место для отдыха и «выхода из дома», не покидая второй этаж.

Преимущества планировки

Главное преимущество — высокая функциональность при компактной застройке. Дом занимает меньше места на участке по сравнению с одноэтажными аналогами той же площади, при этом сохраняет все необходимые зоны. Это особенно важно для участков среднего размера, где нужно оставить пространство под двор, парковку и зону отдыха.

Встроенный гараж — это не только защита автомобиля, но и дополнительная хозяйственная зона. В реальной жизни здесь хранятся инструменты, техника, сезонные вещи, и это разгружает жилую часть дома. При этом вы попадаете в дом, не выходя под дождь или снег — важная деталь, которая ощущается ежедневно.

Четыре спальни — это запас по функциональности. Дом легко адаптируется под разные сценарии: семья с двумя-тремя детьми, работа из дома, частые гости. При этом наличие двух санузлов позволяет избежать бытовых перегрузок в утренние и вечерние часы, а разделение по этажам создаёт комфортную дистанцию между активной и приватной жизнью.

Комплектация проекта

Комплектация

Черновик

Утепленная фундаментая плита

  • Песчаная подушка т=40-60см с утеплёнными коммуникациями
  • Подбетонка, бетон марки М100, т=10см
  • Гидроизоляция, плёнка 150мкм
  • Утеплитель Технониколь xps eco carbon, т= 100мм
  • Фундаментная плита, бетон марки М350
Черновик

Стены

  • стены газобетон IstKult, толщина т=375мм, плотность D400
  • перегородки газобетон IstKult, толщина т=150мм, плотность D500
Черновик

Армопояс, колоны и ригеля

  • Армопояс в U-блок IstKult
  • Монолитные колонны. Бетон В22,5
  • Ригель — горизонтальный несущий элемент конструкции
Черновик

Перекрытие

В зависимости от типа проекта :

  • Балочные (Из дерева)
  • Газобетоные
  • Монолитное
Черновик

Крыша

  • Брус 50х150 (Стыковка через запил)
  • Обрезная доска для стропил
  • Бруски для контр обрешетки
  • Крепежные элементы
  • Изоляция: Гидро-ветрозащитная
  • Антисептики для защиты древесины
Черновик

Кровля

  • Гибкая черепица

Доп.работы

Утеплённая бетонная отмостка

Снижает промерзание грунта у основания дома и отводит воду от фундамента.

Утепление мауерлата

Снижает теплопотери в зоне примыкания кровли к стенам и предотвращает образование мостиков холода.

Подшив кровельных свесов (металл)

Защищает конструкцию крыши от влаги и ветра, обеспечивая аккуратный внешний вид и вентиляцию.

Обратная подсыпка к отмостке

Формирует правильный уклон и уплотнение грунта для стабильности отмостки и отвода воды от дома.

Кольцевая дренажная система

Отводит грунтовые и поверхностные воды, предотвращая переувлажнение и давление на фундамент.

Водосточная система (металл)

Организует эффективный отвод дождевой и талой воды с кровли, защищая фасад и фундамент.

Необязательные доп.работы

Внешняя штукатурка

Защищает фасад от атмосферных воздействий и формирует аккуратный внешний вид здания.

Внутренняя штукатурка

Выравнивает стены и подготавливает поверхности под чистовую отделку.

Стяжка пола

Создаёт ровное и прочное основание под напольные покрытия и распределяет нагрузки.

Водоснабжение

Организуется подача воды с разводкой труб по всем точкам потребления.

Сантехника

Монтаж инженерных узлов и оборудования для корректной работы системы водоотведения и водопользования.

Электрические работы

Выполняется разводка электросетей с учётом безопасности и удобства эксплуатации.

Утепление кровли

Обеспечивает теплоизоляцию дома, снижает теплопотери и предотвращает образование конденсата.

Стоимость проекта

14 368 175 ₽
Стоимость проекта формируется исходя из базовой комплектации, в которую уже входят все ключевые конструктивные элементы дома. Это фундамент, стены из газобетона, межэтажные перекрытия, кровля, а также базовые инженерные решения, обеспечивающие надёжность и долговечность конструкции.

Базовая комплектация — это не «минимум», а продуманная основа дома, рассчитанная на длительную эксплуатацию. Все решения принимаются с учётом нагрузок, климата и особенностей использования, чтобы дом не требовал постоянных доработок и дополнительных вложений в будущем.

Дополнительно возможна адаптация проекта под задачи заказчика: изменение инженерных систем, усиление конструктивных решений или добавление элементов комфорта. Это позволяет гибко управлять бюджетом, не теряя качества и надёжности дома.

Как мы строим дом

Утепленный фундамент

Мы используем утеплённую монолитную плиту. Это надёжное и тёплое основание, которое защищает дом от потерь тепла через пол. Сначала формируется плотная песчаная подушка толщиной 40–60 см с

заранее заложенными коммуникациями. Затем заливается выравнивающий слой бетона (М100, толщина 10 см), чтобы все последующие слои легли ровно. Укладывается гидроизоляционная плёнка (150 мкм), которая защищает конструкцию от влаги. Далее монтируется утеплитель (Технониколь XPS Eco Carbon, толщина 100 мм), который не даёт фундаменту промерзать. После армирования (арматура по ГОСТ) заливается основная плита из бетона высокой прочности (М350) — в итоге получается цельное, надёжное основание под весь дом.

Стены

Далее возводятся стены из газобетона по технологии тонкошовной кладки (IstKult). Наружные стены выполняются из блоков толщиной 375 мм с плотностью D400 — это тёплый материал, который в

большинстве случаев не требует дополнительного утепления. Внутренние перегородки делаются из газобетона толщиной 150 мм (D500). Между блоками используется минимальный слой клея (около 2 мм ±1 мм), благодаря чему стены лучше сохраняют тепло. Особое внимание уделяется всем узлам — в местах окон, перекрытий и соединений стен, чтобы исключить теплопотери. Газобетон практически не даёт усадки (около 1,5 мм на этаж) и обладает хорошей прочностью (B2.5), а также высокой огнестойкостью (REI 240).

Армопояс, колоны и ригеля

Для усиления конструкции выполняется армопояс, а также при необходимости добавляются колонны и ригеля. Армопояс делается в заводских U-блоках (IstKult), что позволяет получить ровную и

аккуратную геометрию. Внутри выполняется армирование, а сами колонны заливаются из бетона класса B22,5. Ригель служит горизонтальным несущим элементом и помогает правильно распределять нагрузки. Весь этот этап делает дом более жёстким и устойчивым.

Деревянные перекрытия

Надёжное и практичное решение для частного дома, особенно при скатной кровле. Чаще всего применяются в одноэтажных домах или домах с мансардой, где нет повышенных нагрузок — это позволяет сделать конструкцию быстрее и экономичнее без потери надёжности.

Используется доска камерной сушки (КС), которая не деформируется со временем. Основные балки сечением 50×200 мм укладываются с расчётным шагом и опираются на армопояс через изоляционный слой, чтобы защитить древесину от влаги.

Все соединения выполняются с запилами — элементы точно подгоняются друг к другу, за счёт чего конструкция получается жёсткой и стабильной. Дополнительно применяются металлические крепёжные элементы для усиления узлов. Древесина обрабатывается огнебиозащитными составами, что защищает её от влаги, грибка и повышает устойчивость к возгоранию.

Газобетонное перекрытие

Применяются в случаях, когда требуется более жёсткая и устойчивая конструкция, чем деревянная — например, при полноценном втором этаже, больших пролётах или использовании тяжёлых перегородок. Такое решение позволяет избежать вибраций и делает перекрытие более стабильным в эксплуатации.

Конструкция собирается из газобетонных элементов с металлическими рёбрами жёсткости и последующей заливкой бетона. За счёт этого снижается расход материалов по сравнению с монолитом, но сохраняется необходимая прочность. Перекрытие работает как единая система вместе со стенами из газобетона, равномерно распределяя нагрузки.

Особое внимание уделяется узлам опирания, армированию и утеплению по периметру, чтобы исключить мостики холода и сохранить теплоэффективность. В результате получается прочное, стабильное и тёплое перекрытие с оптимальным балансом между стоимостью и надёжностью.

Монолитное перекрытие

Максимально прочное и жёсткое решение, которое применяется при высоких нагрузках: полноценный второй этаж, большие пролёты, сложная архитектура. Такое перекрытие полностью исключает вибрации и даёт ощущение «каменного» дома.

Конструкция выполняется по опалубке с обязательным армированием в две сетки (арматура по ГОСТ) с соблюдением защитного слоя бетона. Все узлы, проходы коммуникаций и усиления заранее закладываются до заливки, чтобы получить цельную и правильно работающую плиту. Используется заводской бетон, что гарантирует стабильное качество и прочность.

Особое внимание уделяется геометрии, уровню и равномерности армирования — это напрямую влияет на надёжность всей конструкции. По периметру прорабатывается утепление и узлы примыкания, чтобы исключить мостики холода. В результате получается монолитная плита с высокой несущей способностью, долговечностью и максимальной устойчивостью к нагрузкам.

Крыша

Завершающий несущий контур дома, который принимает на себя снеговые и ветровые нагрузки и защищает конструкцию от влаги.

Основа — стропильная система из сухой доски с обязательной огнебиозащитной обработкой. Узлы собираются с точной геометрией: выдерживаются шаг, углы запилов и линии конька, чтобы нагрузка распределялась равномерно. Все соединения выполняются на гвоздях/саморезах и усиливаются металлическими элементами в ключевых зонах.

Формируется жёсткий каркас: мауэрлат закреплён к стенам, стропила опираются правильно, дополнительно используются затяжки и распорки для исключения прогибов. Далее выполняется сплошное или разреженное основание (обрешётка/настил), подготавливается вентиляционный зазор и узлы под кровельное покрытие.

На выходе — ровная, жёсткая и геометрически точная конструкция, готовая к устройству кровли, утеплению и последующим слоям.

Кровля

Это многослойная система, которая обеспечивает герметичность, вентиляцию и долговечность всей крыши. На этом этапе конструкция окончательно защищается от осадков и перепадов температур.

Основание под кровлю подготавливается на жёстком настиле (OSB/обрешётка), после чего укладывается подкладочный гидроизоляционный ковер с герметизацией всех нахлёстов и примыканий. Особое внимание уделяется зонам риска — ендовы, карнизы, конёк и проходы через кровлю.

Далее монтируется финишное покрытие — гибкая битумная черепица. Укладка выполняется с точной геометрией рядов, соблюдением шагов крепления и температурных режимов, что обеспечивает плотное прилегание и защиту от ветровых нагрузок. Формируются аккуратные узлы коньков и ребер.

Инженерные элементы интегрируются в кровлю:
— вентиляционные выходы для подкровельного пространства,
— аэраторы для удаления влаги и продления срока службы конструкции,
— герметичные проходы через кровлю.

Примыкания (в том числе к дымоходам) выполняются с использованием металлических фартуков и герметиков, исключающих протечки. Дополнительно устанавливается водосточная система и элементы безопасности/эксплуатации кровли.

Результат — полностью герметичная, вентилируемая и эстетически завершённая кровля, готовая к эксплуатации в любых погодных условиях.

Вопросы и ответы

Шаблон проекта
Какой участок подойдёт под этот дом?

Благодаря компактным габаритам дом хорошо подходит для участков от 6–8 соток, комфортно — от 8–10 соток. Двухэтажная схема позволяет сохранить больше свободного пространства на участке по сравнению с одноэтажными домами аналогичной площади. Остаётся место для террасы, зоны отдыха, парковки и озеленения, а дом не «забивает» участок полностью.

Оптимально — 4–6 человек. Четыре спальни позволяют комфортно разместить семью с несколькими детьми и при необходимости выделить отдельную комнату под кабинет или гостей. Это универсальный формат, который не требует переделок при изменении состава семьи.

При площади 200+ м² двухэтажная схема позволяет сократить пятно застройки и сохранить участок. При этом происходит логичное разделение: первый этаж — активная жизнь (гостиная, кухня), второй — приватная зона. Это снижает шум и делает дом удобнее в повседневности.

Это одно из самых практичных решений. Вы заходите в дом, не выходя на улицу, что особенно важно зимой и в дождь. Плюс — это дополнительное пространство хранения. В большинстве домов именно гараж берёт на себя функцию «технической зоны», разгружая жилые помещения.

Да, проект полностью адаптирован для постоянного проживания. Внешние стены из газобетона толщиной 375 мм обеспечивают хорошую теплоизоляцию, что позволяет сохранять тепло зимой и комфортную температуру летом. При правильно реализованных инженерных системах дом будет энергоэффективным и удобным в эксплуатации круглый год.

Да, проект допускает адаптацию под индивидуальные задачи. Можно изменить назначение помещений, перераспределить площади, например увеличить кухню-гостиную, выделить кабинет или доработать гардеробные зоны. При этом важно учитывать конструктивную схему дома, чтобы изменения не повлияли на надёжность и экономику строительства.

Индивидуальные
изменения проекта

  • Можно изменить планировку
  • Можно увеличить площадь
  • Можно изменить внешний вид
  • Можно адаптировать под участок

Оставьте имя и телефон что бы обсудить
индивидуальные изменения

Отправляя данную форму вы соглашаетесь с политикой обработки персональных данных.

Похожие проекты

Рекомендуем

Подбор дома по особеностям