Мы используем cookie-файлы
для оптимизации работы сайта.

Проект дома 179 м² — двухэтажный из газобетона «Пула»

Проект дома 179 м² — двухэтажный из газобетона
«Пула»
Проект дома может меняться
в зависимости от ваших предпочтений
Проект дома 179 м² — двухэтажный из газобетона
«Пула»
Проект дома может меняться
в зависимости от ваших предпочтений
10 344 980 ₽
Стоимость
от 17.04.2026
Актуальную стоимость
уточняйте у менеджера
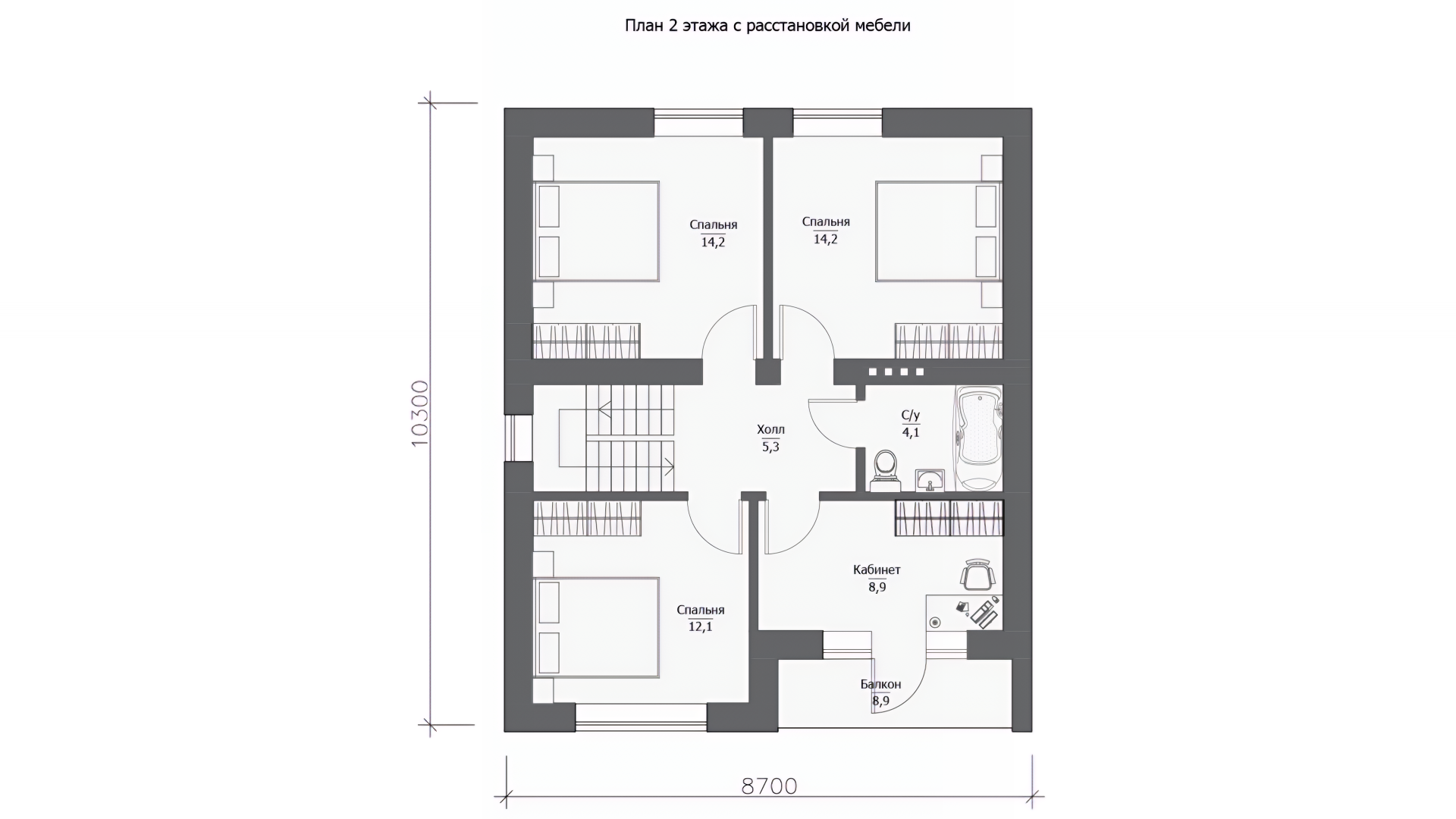
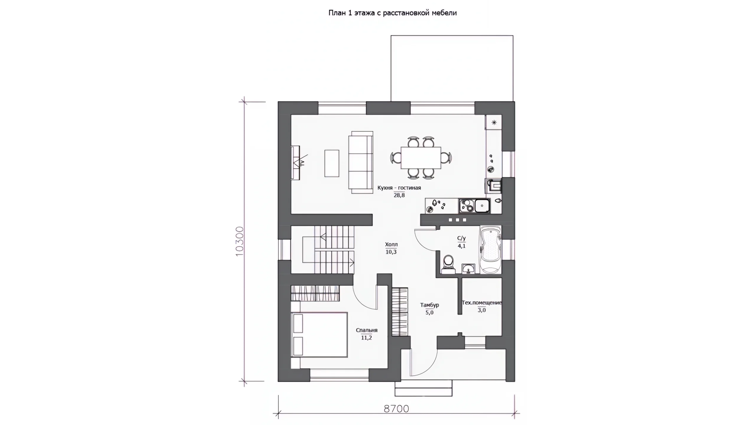
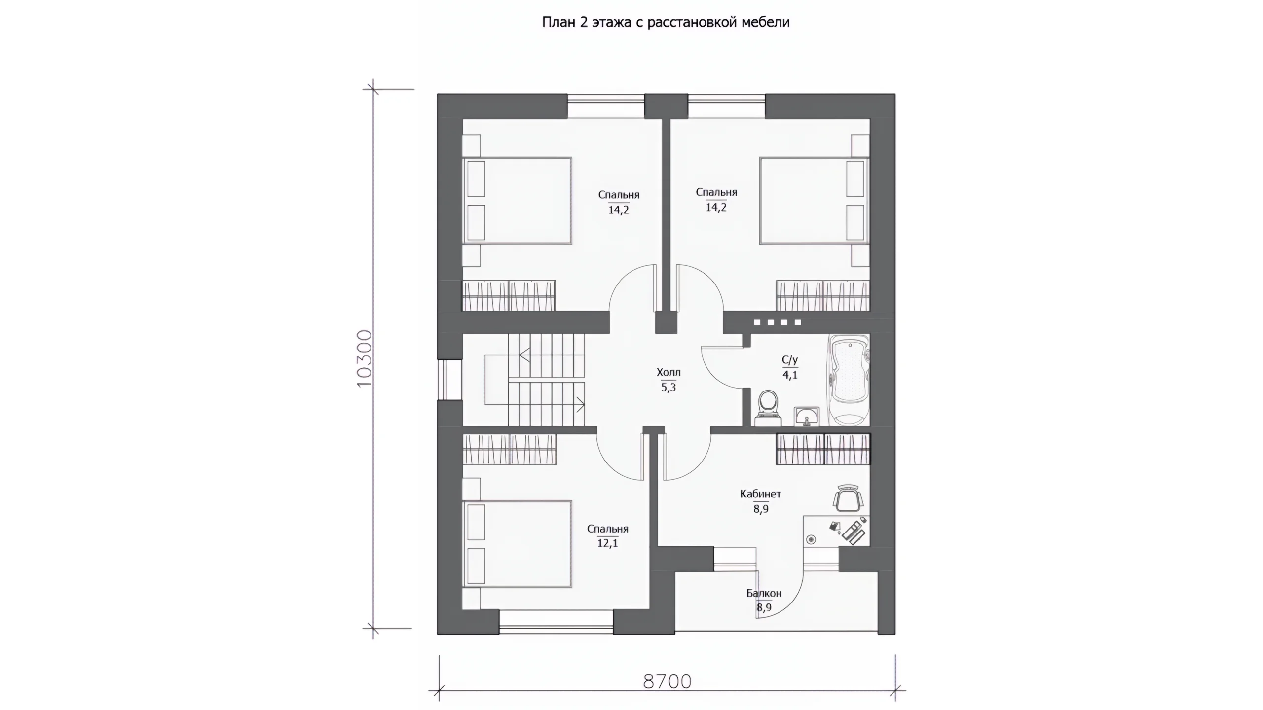
  • Жилая площадьЖилая площадь118.1 м²
  • Общая площадьОбщая площадь179 м²
  • Кол-во спаленКол-во спален4
  • Кол-во сан узловКол-во сан узлов2
  • Габариты домаГабариты дома10,3 x 8,7 м
  • Кол-во этажейКол-во этажей2
  • Сроки строительства120 дней
  • Возможность изменить проектДа
  • Круглогодичное проживаниеДа
  • Материал стен\перегородокГазобетонные блоки
  • Тип фундаментаУтепленный, плитный
  • Толщина внешних стен375 мм
  • Толщина перегородок150 мм

Описание

Проект «Пула» — это компактный двухэтажный дом из газобетона с мансардным этажом, в котором при габаритах 10,3 × 8,7 м реализовано 179 м² общей площади. Архитектура построена на рациональном использовании каждого метра: дом не выглядит громоздким снаружи, но внутри даёт полноценный набор помещений для комфортной жизни семьи. Первый этаж отведён под общую зону с кухней-гостиной и дополнительной спальней, второй — под приватные комнаты.

Планировка логична и удобна в повседневной эксплуатации: чёткое разделение на дневную и ночную зоны снижает шум и повышает комфорт проживания. Наличие спальни на первом этаже — важный практический плюс: она может использоваться как гостевая или как комната для старшего поколения без необходимости подниматься по лестнице.

С точки зрения конструкции дом выполнен как энергоэффективная система. Газобетон формирует однородные стены без мостиков холода, а мансардный этаж утеплён по скатам с соблюдением пароизоляции и вентиляции. Это исключает перегрев летом, промерзание зимой и обеспечивает стабильный микроклимат внутри дома.

Преимущества планировки

Главное преимущество — баланс компактности и функциональности. При относительно небольших габаритах дом включает четыре спальни, кабинет и два санузла, что редко встречается в подобных размерах. Это позволяет разместить семью из 4–6 человек без ощущения тесноты.

Отдельный кабинет — это не формальность, а полноценное рабочее пространство. Он изолирован от основных зон, что важно для удалённой работы: нет шума кухни-гостиной и движения по дому, можно спокойно проводить встречи и сосредоточиться на задачах.

Мансардный этаж спроектирован с учётом всех теплотехнических требований. В отличие от типовых решений, здесь исключены мостики холода в узлах кровли и примыканиях, а правильный «пирог» утепления обеспечивает равномерную температуру по всему этажу. Балкон дополняет приватную зону, создавая дополнительное пространство для отдыха без увеличения площади застройки.

Комплектация проекта

Комплектация

Черновик

Утепленная фундаментая плита

  • Песчаная подушка т=40-60см с утеплёнными коммуникациями
  • Подбетонка, бетон марки М100, т=10см
  • Гидроизоляция, плёнка 150мкм
  • Утеплитель Технониколь xps eco carbon, т= 100мм
  • Фундаментная плита, бетон марки М350
Черновик

Стены

  • стены газобетон IstKult, толщина т=375мм, плотность D400
  • перегородки газобетон IstKult, толщина т=150мм, плотность D500
Черновик

Армопояс, колоны и ригеля

  • Армопояс в U-блок IstKult
  • Монолитные колонны. Бетон В22,5
  • Ригель — горизонтальный несущий элемент конструкции
Черновик

Перекрытие

В зависимости от типа проекта :

  • Балочные (Из дерева)
  • Газобетоные
  • Монолитное
Черновик

Крыша

  • Брус 50х150 (Стыковка через запил)
  • Обрезная доска для стропил
  • Бруски для контр обрешетки
  • Крепежные элементы
  • Изоляция: Гидро-ветрозащитная
  • Антисептики для защиты древесины
Черновик

Кровля

  • Гибкая черепица

Доп.работы

Утеплённая бетонная отмостка

Снижает промерзание грунта у основания дома и отводит воду от фундамента.

Утепление мауерлата

Снижает теплопотери в зоне примыкания кровли к стенам и предотвращает образование мостиков холода.

Подшив кровельных свесов (металл)

Защищает конструкцию крыши от влаги и ветра, обеспечивая аккуратный внешний вид и вентиляцию.

Обратная подсыпка к отмостке

Формирует правильный уклон и уплотнение грунта для стабильности отмостки и отвода воды от дома.

Кольцевая дренажная система

Отводит грунтовые и поверхностные воды, предотвращая переувлажнение и давление на фундамент.

Водосточная система (металл)

Организует эффективный отвод дождевой и талой воды с кровли, защищая фасад и фундамент.

Необязательные доп.работы

Внешняя штукатурка

Защищает фасад от атмосферных воздействий и формирует аккуратный внешний вид здания.

Внутренняя штукатурка

Выравнивает стены и подготавливает поверхности под чистовую отделку.

Стяжка пола

Создаёт ровное и прочное основание под напольные покрытия и распределяет нагрузки.

Водоснабжение

Организуется подача воды с разводкой труб по всем точкам потребления.

Сантехника

Монтаж инженерных узлов и оборудования для корректной работы системы водоотведения и водопользования.

Электрические работы

Выполняется разводка электросетей с учётом безопасности и удобства эксплуатации.

Утепление кровли

Обеспечивает теплоизоляцию дома, снижает теплопотери и предотвращает образование конденсата.

Как мы строим дом

Утепленный фундамент

Мы используем утеплённую монолитную плиту. Это надёжное и тёплое основание, которое защищает дом от потерь тепла через пол. Сначала формируется плотная песчаная подушка толщиной 40–60 см с

заранее заложенными коммуникациями. Затем заливается выравнивающий слой бетона (М100, толщина 10 см), чтобы все последующие слои легли ровно. Укладывается гидроизоляционная плёнка (150 мкм), которая защищает конструкцию от влаги. Далее монтируется утеплитель (Технониколь XPS Eco Carbon, толщина 100 мм), который не даёт фундаменту промерзать. После армирования (арматура по ГОСТ) заливается основная плита из бетона высокой прочности (М350) — в итоге получается цельное, надёжное основание под весь дом.

Стены

Далее возводятся стены из газобетона по технологии тонкошовной кладки (IstKult). Наружные стены выполняются из блоков толщиной 375 мм с плотностью D400 — это тёплый материал, который в

большинстве случаев не требует дополнительного утепления. Внутренние перегородки делаются из газобетона толщиной 150 мм (D500). Между блоками используется минимальный слой клея (около 2 мм ±1 мм), благодаря чему стены лучше сохраняют тепло. Особое внимание уделяется всем узлам — в местах окон, перекрытий и соединений стен, чтобы исключить теплопотери. Газобетон практически не даёт усадки (около 1,5 мм на этаж) и обладает хорошей прочностью (B2.5), а также высокой огнестойкостью (REI 240).

Армопояс, колоны и ригеля

Для усиления конструкции выполняется армопояс, а также при необходимости добавляются колонны и ригеля. Армопояс делается в заводских U-блоках (IstKult), что позволяет получить ровную и

аккуратную геометрию. Внутри выполняется армирование, а сами колонны заливаются из бетона класса B22,5. Ригель служит горизонтальным несущим элементом и помогает правильно распределять нагрузки. Весь этот этап делает дом более жёстким и устойчивым.

Деревянные перекрытия

Надёжное и практичное решение для частного дома, особенно при скатной кровле. Чаще всего применяются в одноэтажных домах или домах с мансардой, где нет повышенных нагрузок — это позволяет сделать конструкцию быстрее и экономичнее без потери надёжности.

Используется доска камерной сушки (КС), которая не деформируется со временем. Основные балки сечением 50×200 мм укладываются с расчётным шагом и опираются на армопояс через изоляционный слой, чтобы защитить древесину от влаги.

Все соединения выполняются с запилами — элементы точно подгоняются друг к другу, за счёт чего конструкция получается жёсткой и стабильной. Дополнительно применяются металлические крепёжные элементы для усиления узлов. Древесина обрабатывается огнебиозащитными составами, что защищает её от влаги, грибка и повышает устойчивость к возгоранию.

Газобетонное перекрытие

Применяются в случаях, когда требуется более жёсткая и устойчивая конструкция, чем деревянная — например, при полноценном втором этаже, больших пролётах или использовании тяжёлых перегородок. Такое решение позволяет избежать вибраций и делает перекрытие более стабильным в эксплуатации.

Конструкция собирается из газобетонных элементов с металлическими рёбрами жёсткости и последующей заливкой бетона. За счёт этого снижается расход материалов по сравнению с монолитом, но сохраняется необходимая прочность. Перекрытие работает как единая система вместе со стенами из газобетона, равномерно распределяя нагрузки.

Особое внимание уделяется узлам опирания, армированию и утеплению по периметру, чтобы исключить мостики холода и сохранить теплоэффективность. В результате получается прочное, стабильное и тёплое перекрытие с оптимальным балансом между стоимостью и надёжностью.

Монолитное перекрытие

Максимально прочное и жёсткое решение, которое применяется при высоких нагрузках: полноценный второй этаж, большие пролёты, сложная архитектура. Такое перекрытие полностью исключает вибрации и даёт ощущение «каменного» дома.

Конструкция выполняется по опалубке с обязательным армированием в две сетки (арматура по ГОСТ) с соблюдением защитного слоя бетона. Все узлы, проходы коммуникаций и усиления заранее закладываются до заливки, чтобы получить цельную и правильно работающую плиту. Используется заводской бетон, что гарантирует стабильное качество и прочность.

Особое внимание уделяется геометрии, уровню и равномерности армирования — это напрямую влияет на надёжность всей конструкции. По периметру прорабатывается утепление и узлы примыкания, чтобы исключить мостики холода. В результате получается монолитная плита с высокой несущей способностью, долговечностью и максимальной устойчивостью к нагрузкам.

Крыша

Завершающий несущий контур дома, который принимает на себя снеговые и ветровые нагрузки и защищает конструкцию от влаги.

Основа — стропильная система из сухой доски с обязательной огнебиозащитной обработкой. Узлы собираются с точной геометрией: выдерживаются шаг, углы запилов и линии конька, чтобы нагрузка распределялась равномерно. Все соединения выполняются на гвоздях/саморезах и усиливаются металлическими элементами в ключевых зонах.

Формируется жёсткий каркас: мауэрлат закреплён к стенам, стропила опираются правильно, дополнительно используются затяжки и распорки для исключения прогибов. Далее выполняется сплошное или разреженное основание (обрешётка/настил), подготавливается вентиляционный зазор и узлы под кровельное покрытие.

На выходе — ровная, жёсткая и геометрически точная конструкция, готовая к устройству кровли, утеплению и последующим слоям.

Кровля

Это многослойная система, которая обеспечивает герметичность, вентиляцию и долговечность всей крыши. На этом этапе конструкция окончательно защищается от осадков и перепадов температур.

Основание под кровлю подготавливается на жёстком настиле (OSB/обрешётка), после чего укладывается подкладочный гидроизоляционный ковер с герметизацией всех нахлёстов и примыканий. Особое внимание уделяется зонам риска — ендовы, карнизы, конёк и проходы через кровлю.

Далее монтируется финишное покрытие — гибкая битумная черепица. Укладка выполняется с точной геометрией рядов, соблюдением шагов крепления и температурных режимов, что обеспечивает плотное прилегание и защиту от ветровых нагрузок. Формируются аккуратные узлы коньков и ребер.

Инженерные элементы интегрируются в кровлю:
— вентиляционные выходы для подкровельного пространства,
— аэраторы для удаления влаги и продления срока службы конструкции,
— герметичные проходы через кровлю.

Примыкания (в том числе к дымоходам) выполняются с использованием металлических фартуков и герметиков, исключающих протечки. Дополнительно устанавливается водосточная система и элементы безопасности/эксплуатации кровли.

Результат — полностью герметичная, вентилируемая и эстетически завершённая кровля, готовая к эксплуатации в любых погодных условиях.

Вопросы и ответы

Шаблон проекта
Под какой участок подойдёт этот дом?

Дом с габаритами 10,3 × 8,7 м рационально размещается на участках от 6–8 соток. При этом важно не только «влезть» в пятно застройки, а правильно соблюсти отступы от границ и обеспечить инсоляцию помещений. За счёт компактной формы дом удобно ориентировать по сторонам света: кухню-гостиную — на юг или запад, спальни — на более спокойные стороны. Это напрямую влияет на комфорт и экономию на освещении и отоплении.

Оптимально — 4–6 человек. Четыре спальни позволяют гибко распределить помещения: отдельные комнаты для детей, мастер-спальня и полноценная гостевая. При этом важно, что планировка не перегружена лишними коридорами — жилая площадь используется эффективно, и дом не «съедает» пространство на проходные зоны.

В типовых домах проблема возникает из-за неправильного «пирога» кровли: отсутствует пароизоляция, нарушена вентиляция или утеплитель уложен с разрывами — это даёт мостики холода и конденсат. В данном проекте используется многослойная система: утепление по скатам без разрывов, герметичная пароизоляция изнутри и обязательный вентиляционный зазор. За счёт этого точка росы выносится за пределы конструкции, тепло не уходит, а температура на мансарде остаётся стабильной даже в морозы.

Это не просто дополнительная комната, а стратегически важный элемент планировки. Во-первых, это полноценная гостевая зона — гости не пересекаются с приватной частью второго этажа. Во-вторых, это удобство для проживания без лестницы (например, для родителей или в период восстановления после травм). В-третьих, помещение легко трансформируется: кабинет, игровая или временная спальня — без перепланировок.

Да, при грамотном размещении это оптимальный минимум. Один санузел располагается на первом этаже — для повседневного использования и гостей, второй — на уровне спален. Это снижает нагрузку в «пиковые часы». Важно, что санузлы привязаны к стоякам и расположены компактно — это уменьшает длину коммуникаций, снижает риск протечек и упрощает обслуживание системы.

Балкон — это не просто декоративный элемент. Он работает как дополнительная функциональная зона: проветривание спальни без сквозняков, быстрый выход на улицу, место для отдыха. При правильной гидроизоляции и утеплении узла примыкания балкон не создаёт мостиков холода и не влияет на тепловой контур дома. Более того, он улучшает микроклимат в помещениях за счёт естественной вентиляции.

Да, проект полностью адаптирован для постоянного проживания. Внешние стены из газобетона толщиной 375 мм обеспечивают хорошую теплоизоляцию, что позволяет сохранять тепло зимой и комфортную температуру летом. При правильно реализованных инженерных системах дом будет энергоэффективным и удобным в эксплуатации круглый год.

Да, проект допускает адаптацию под индивидуальные задачи. Можно изменить назначение помещений, перераспределить площади, например увеличить кухню-гостиную, выделить кабинет или доработать гардеробные зоны. При этом важно учитывать конструктивную схему дома, чтобы изменения не повлияли на надёжность и экономику строительства.

Индивидуальные
изменения проекта

  • Можно изменить планировку
  • Можно увеличить площадь
  • Можно изменить внешний вид
  • Можно адаптировать под участок

Оставьте имя и телефон что бы обсудить
индивидуальные изменения

Отправляя данную форму вы соглашаетесь с политикой обработки персональных данных.

Похожие проекты

Рекомендуем

Подбор дома по особеностям