Для проекта «Лека» подойдёт участок от 5–6 соток. Компактные габариты позволяют удобно разместить дом даже на небольшом участке, при этом остаётся место для парковки, зоны отдыха или сада. Это отличный вариант для плотной застройки.
Проект «Лека» — это компактный одноэтажный дом площадью 96 м² в скандинавском стиле, идеально подходящий для спокойной и практичной загородной жизни. Архитектура дома простая и аккуратная: двускатная кровля, лаконичные фасады и сочетание светлой штукатурки с тёплыми деревянными акцентами создают уютный и современный внешний вид. Дом органично вписывается в природное окружение и не перегружает участок.
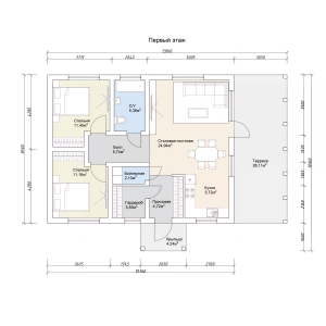
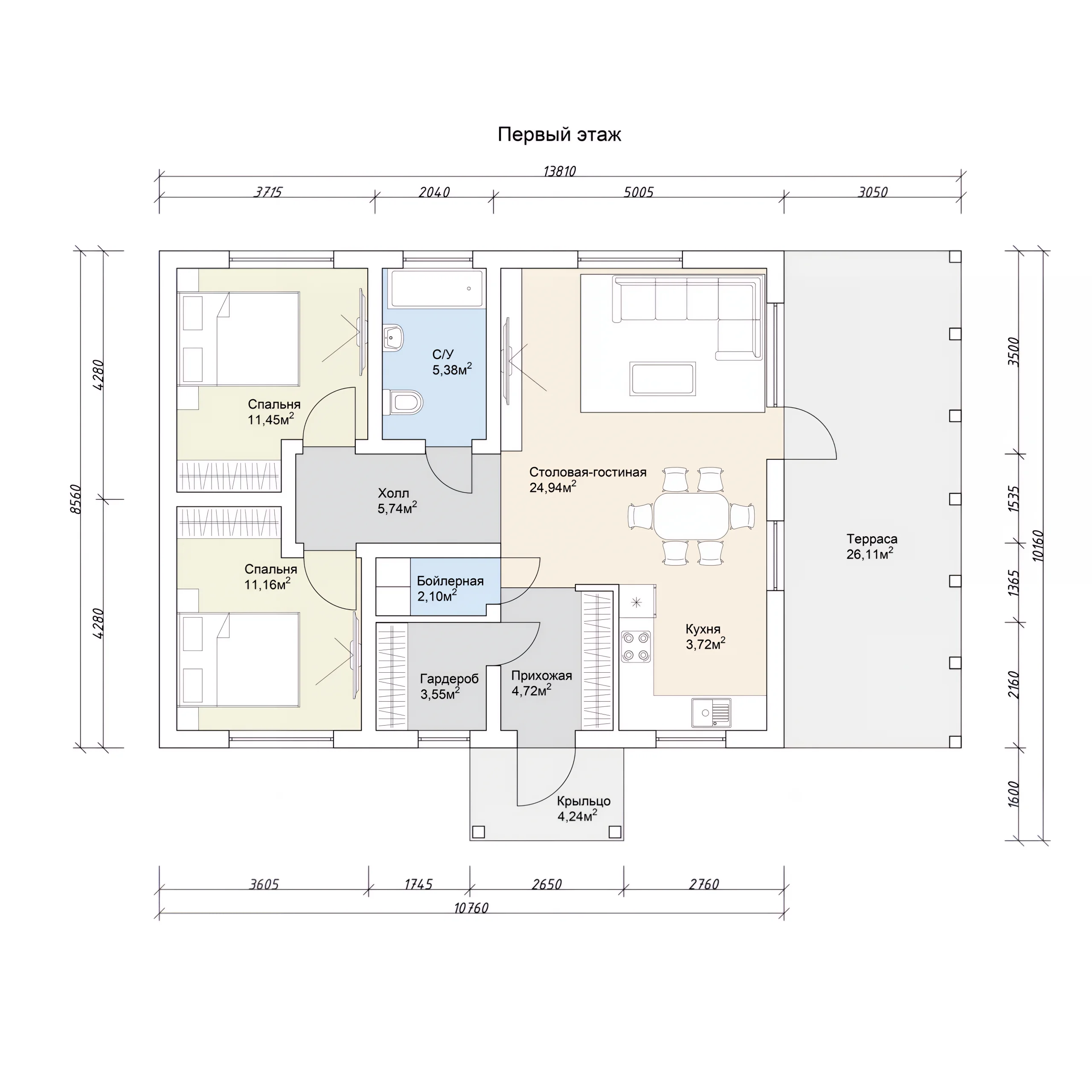
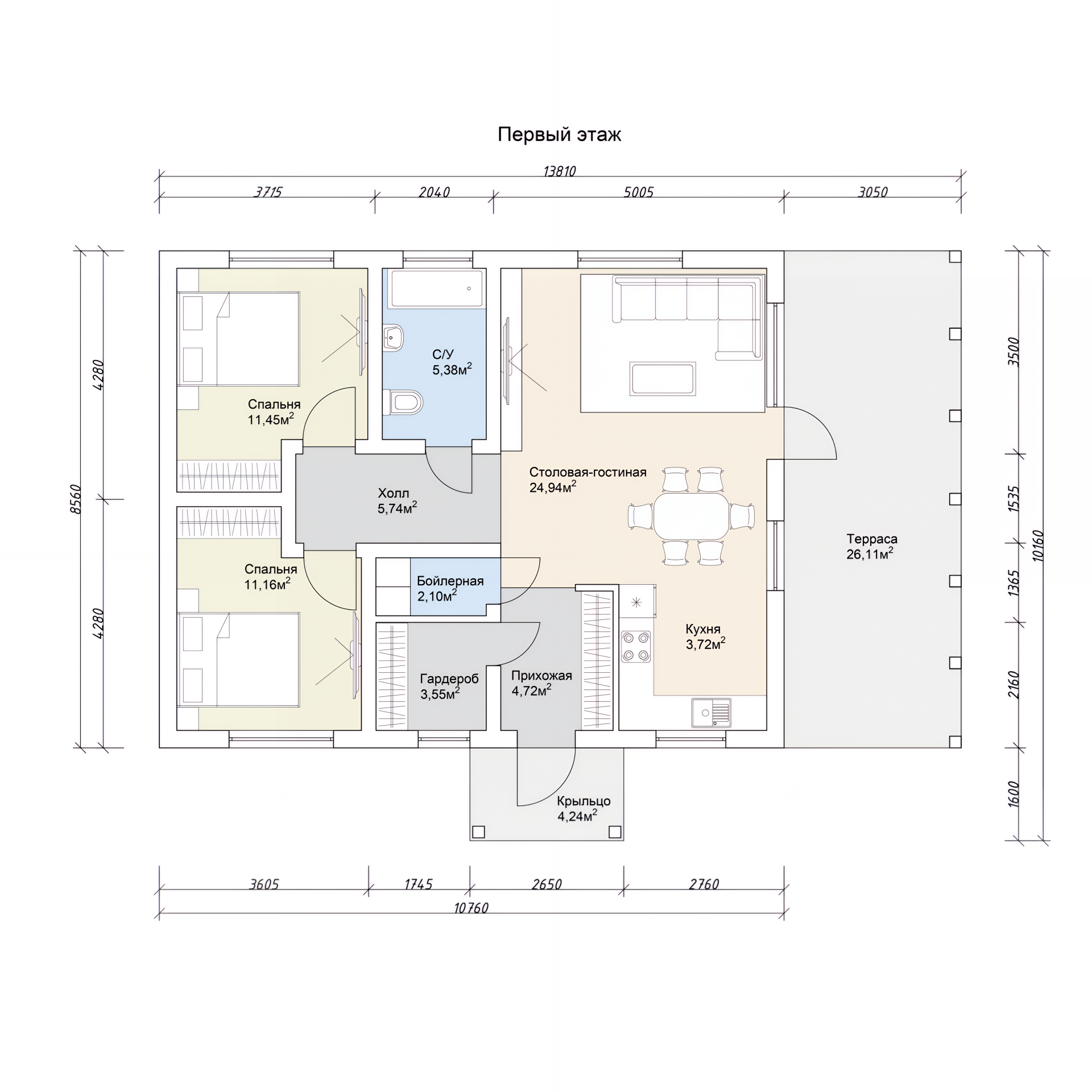
Планировка максимально рациональная. Центральное место занимает кухня-гостиная площадью почти 25 м² — это основное пространство для жизни, где объединены кухня, обеденная зона и зона отдыха. Из неё есть прямой выход на открытую террасу с навесом, которая становится логичным продолжением дома. В проекте предусмотрены две спальни, санузел, гардероб и компактная бойлерная, что делает дом полноценным для постоянного проживания при небольшой площади.
Главное преимущество «Лека» — это грамотная компактность. В доме нет лишних метров, но есть всё необходимое: удобная кухня-гостиная, две спальни и полноценные вспомогательные помещения. Это позволяет снизить стоимость строительства и дальнейшего содержания без потери комфорта.
Отдельный плюс — это терраса с навесом. Она защищена от солнца и осадков, поэтому может использоваться в любую погоду. Это отличное место для отдыха, завтраков на свежем воздухе или встреч с друзьями. Крытое крыльцо дополнительно защищает входную зону и делает дом более практичным в эксплуатации.
Скандинавская архитектура и простая форма дома делают его энергоэффективным и экономичным. Меньшая площадь стен и кровли снижает теплопотери, а продуманная планировка упрощает отопление и обслуживание дома.

Для проекта «Лека» подойдёт участок от 5–6 соток. Компактные габариты позволяют удобно разместить дом даже на небольшом участке, при этом остаётся место для парковки, зоны отдыха или сада. Это отличный вариант для плотной застройки.
Дом оптимально подойдёт для 2–4 человек. Две спальни позволяют комфортно разместить семью с ребёнком или использовать одну комнату как гостевую. При необходимости пространство легко адаптируется под разные сценарии жизни.
Главные особенности — это большая кухня-гостиная с выходом на террасу и сама терраса с навесом. Также стоит отметить наличие гардероба и бойлерной, что редко встречается в домах такой площади. Дом сочетает компактность и полноценный функционал.
Да, проект полностью адаптирован для постоянного проживания. Внешние стены из газобетона толщиной 375 мм обеспечивают хорошую теплоизоляцию, что позволяет сохранять тепло зимой и комфортную температуру летом. При правильно реализованных инженерных системах дом будет энергоэффективным и удобным в эксплуатации круглый год.
Да, проект допускает адаптацию под индивидуальные задачи. Можно изменить назначение помещений, перераспределить площади, например увеличить кухню-гостиную, выделить кабинет или доработать гардеробные зоны. При этом важно учитывать конструктивную схему дома, чтобы изменения не повлияли на надёжность и экономику строительства.