Для проекта «Атэн» рекомендуется участок от 12–15 соток. Дом имеет крупные габариты и встроенный гараж, поэтому важно предусмотреть место для подъезда, парковки и благоустройства. На просторном участке дом выглядит наиболее гармонично.
Проект «Атэн» — это большой двухэтажный дом площадью 375 м² в классическом стиле, рассчитанный на комфортное проживание большой семьи. Архитектура дома выглядит солидно и аккуратно: строгие формы, выразительная входная группа с колоннами и продуманная геометрия фасадов создают ощущение надёжности и статуса. Отдельно выделен объём гаража на две машины, который органично встроен в общий силуэт дома.
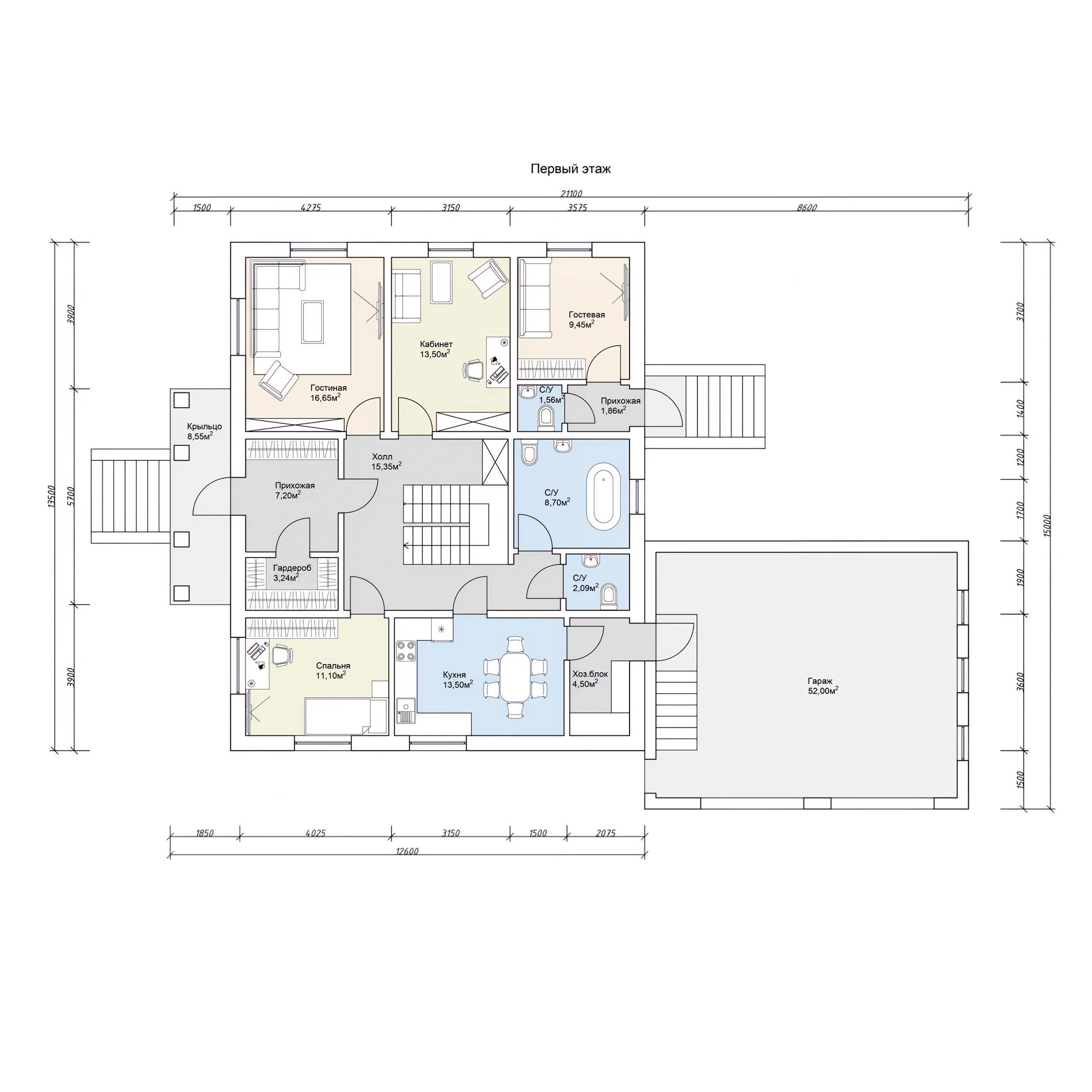
Планировка максимально функциональна и логична. На первом этаже расположена просторная кухня-гостиная, отдельная гостиная, кабинет, а также вспомогательные помещения и доступ в гараж. Такое решение позволяет разделить активные зоны и сделать пространство удобным для повседневной жизни. Второй этаж полностью отведён под приватную часть — здесь находятся спальни и санузлы, обеспечивая тишину и комфорт для всех членов семьи.
Главное преимущество «Атэн» — это масштаб и продуманность планировки. Дом рассчитан на большую семью: пять спален позволяют комфортно разместить всех, а также предусмотреть гостевые комнаты. Четыре санузла исключают бытовые неудобства и делают проживание максимально комфортным даже при полной загрузке дома.
Отдельное внимание уделено функциональности первого этажа. Помимо кухни-гостиной здесь есть полноценная гостиная и кабинет — это даёт гибкость в использовании пространства. Можно одновременно отдыхать, работать и принимать гостей, не мешая друг другу.
Сильной стороной проекта является встроенный гараж на два автомобиля. Он защищает машины от погодных условий и обеспечивает прямой доступ в дом, что особенно удобно в холодное время года. Дополнительно предусмотрены хозблок и кладовые зоны, которые упрощают хранение и эксплуатацию дома.

Для проекта «Атэн» рекомендуется участок от 12–15 соток. Дом имеет крупные габариты и встроенный гараж, поэтому важно предусмотреть место для подъезда, парковки и благоустройства. На просторном участке дом выглядит наиболее гармонично.
Дом оптимально рассчитан на семью из 6–8 человек. Шесть спален позволяют разместить всех членов семьи с комфортом, а также оставить пространство для гостей. Планировка хорошо подходит для большой семьи или нескольких поколений.
Ключевые особенности — это наличие отдельной гостиной, кабинета и встроенного гаража на две машины. Также стоит отметить большое количество санузлов и продуманное разделение зон по этажам. Дом сочетает в себе комфорт, функциональность и классическую архитектуру.
Проект предлагает максимум пространства и удобства для жизни. Он учитывает реальные потребности большой семьи: личные комнаты, зоны отдыха, рабочее пространство и удобную парковку. Это надёжный и практичный дом, рассчитанный на долгосрочное комфортное проживание без компромиссов.
Да, проект полностью адаптирован для постоянного проживания. Внешние стены из газобетона толщиной 375 мм обеспечивают хорошую теплоизоляцию, что позволяет сохранять тепло зимой и комфортную температуру летом. При правильно реализованных инженерных системах дом будет энергоэффективным и удобным в эксплуатации круглый год.
Да, проект допускает адаптацию под индивидуальные задачи. Можно изменить назначение помещений, перераспределить площади, например увеличить кухню-гостиную, выделить кабинет или доработать гардеробные зоны. При этом важно учитывать конструктивную схему дома, чтобы изменения не повлияли на надёжность и экономику строительства.