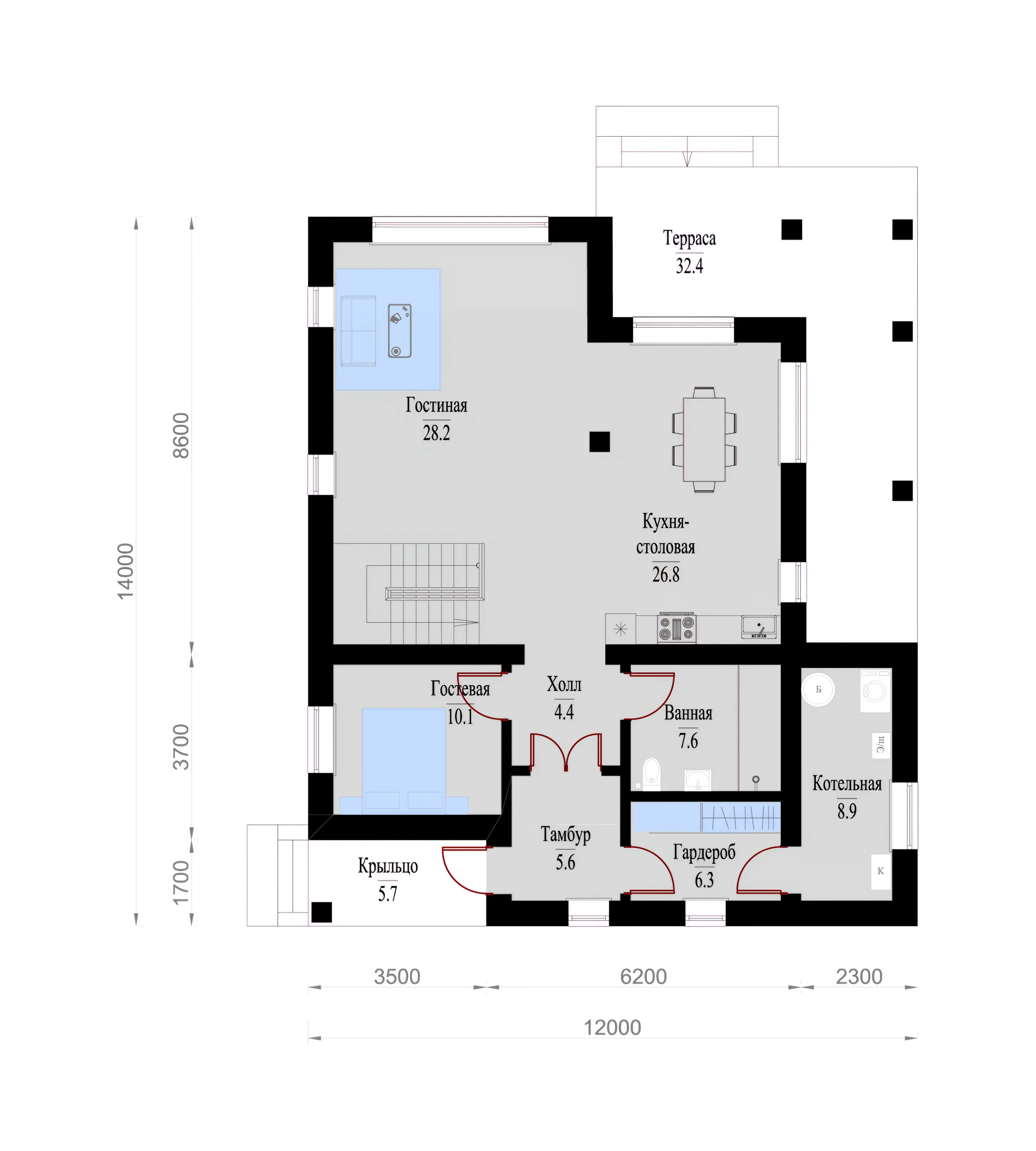
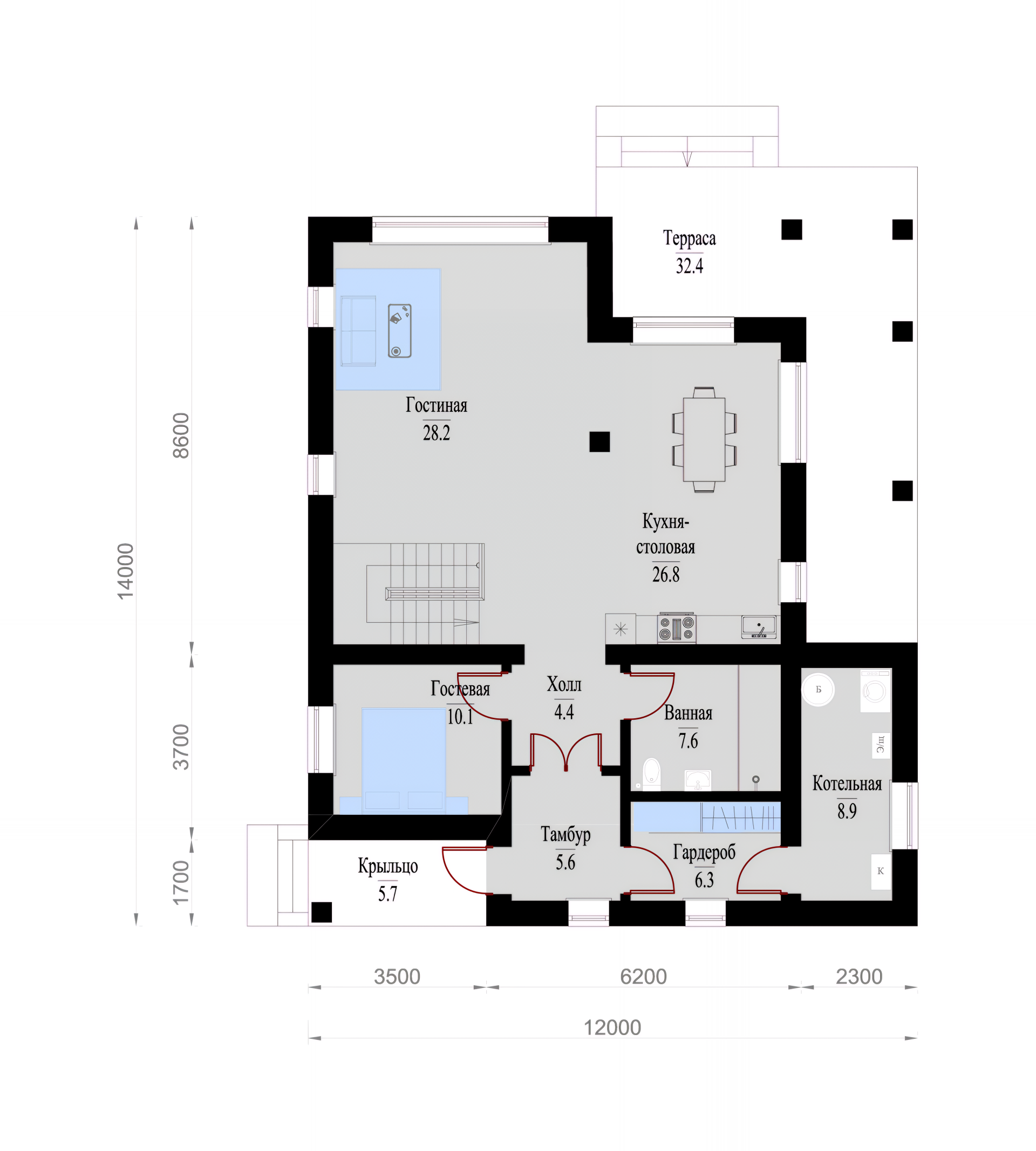
Дом с габаритами 14 × 12 метров оптимален для участков от 8–10 соток. Это позволяет правильно разместить дом с отступами, организовать зону отдыха, парковку и при необходимости дополнительные постройки без ощущения перегруженности участка.
Проект «Неапль» — это двухэтажный дом из газобетона с мансардным этажом и продуманной архитектурой, где при габаритах 14,0 × 12,0 реализовано 283 м² общей площади. Планировка выстроена по принципу грамотного разделения функций: первый этаж — активная зона с кухней-гостиной и выходом на террасу, второй — приватный уровень со спальнями. Такое решение обеспечивает комфортную повседневную эксплуатацию без пересечения потоков.
Ключевой архитектурный элемент — второй свет в зоне гостиной. Это не просто визуальный эффект, а продуманное решение, которое увеличивает объём помещения, улучшает естественное освещение и формирует правильную циркуляцию воздуха. При корректной реализации теплового контура и остекления такие пространства остаются энергоэффективными и не приводят к теплопотерям.
С инженерной точки зрения дом спроектирован как единая тёплая оболочка. Газобетонные стены формируют однородный контур без выраженных мостиков холода, а узлы кровли, перекрытий и остекления проработаны с учётом герметичности и пароизоляции. Мансардный этаж утеплён по скатам с обязательной вентиляцией подкровельного пространства, что исключает перегрев летом и сохраняет тепло зимой. В результате дом стабилен по температуре и экономичен в эксплуатации.
Главное преимущество — сочетание объёма и рациональности. При большой площади дом не перегружен лишними коридорами: полезная жилая площадь 170,8 м² используется максимально эффективно. Пространство воспринимается открытым, но при этом сохраняется приватность каждой зоны.
Второй свет — это не только эстетика, но и практическая выгода. За счёт высокого пространства и больших окон улучшается инсоляция, уменьшается потребность в искусственном освещении днём, а правильно рассчитанная вентиляция обеспечивает комфортный микроклимат без застоя воздуха.
Отдельного внимания заслуживает мастер-спальня — это полноценная приватная зона с собственным санузлом и гардеробной, что соответствует современным стандартам комфортного жилья. Дополняют функциональность кабинет, который легко адаптируется под работу или хобби, и терраса с навесом — полноценное продолжение жилого пространства в тёплый сезон.

Дом с габаритами 14 × 12 метров оптимален для участков от 8–10 соток. Это позволяет правильно разместить дом с отступами, организовать зону отдыха, парковку и при необходимости дополнительные постройки без ощущения перегруженности участка.
Проект комфортен для семьи из 4–6 человек. Три спальни, включая мастер-блок, позволяют грамотно распределить личное пространство, а общие зоны рассчитаны на полноценную семейную жизнь и приём гостей.
В типовых домах проблема возникает из-за физики воздуха и ошибок в узлах. Тёплый воздух поднимается вверх, и при большой высоте помещения он скапливается под потолком, а в зоне проживания остаётся более прохладный слой. Если при этом есть большие окна с низким сопротивлением теплопередаче, некачественный монтаж или щели в примыканиях — теплопотери резко увеличиваются. Добавьте сюда слабую вентиляцию и отсутствие перераспределения воздуха — и получается ощущение «холодного низа» даже при работающем отоплении.
В проекте «Неапль» это решено комплексно, на уровне конструкции и инженерии. Во-первых, формируется герметичный тепловой контур: газобетонные стены без разрывов по утеплению, правильно выполненные узлы примыканий кровли и окон, исключение мостиков холода. Во-вторых, применяются энергоэффективные стеклопакеты с низким коэффициентом теплопередачи — они удерживают тепло и устраняют эффект холодного излучения от остекления.
Ключевой момент — работа с воздухом. В проекте закладывается корректная система отопления и циркуляции: тепло не «застревает» под потолком, а равномерно распределяется по объёму помещения. За счёт этого отсутствует температурная разница между верхом и низом. Дополнительно учитывается вентиляция — она убирает застой воздуха и поддерживает комфортный микроклимат.
Итог: второй свет здесь — это не источник теплопотерь, а продуманное архитектурное решение. При правильной реализации он даёт больше света и объёма без потери тепла и без дискомфорта зимой.
Это полноценная функциональная зона, а не просто декоративный элемент. Навес защищает от солнца и осадков, позволяя использовать террасу большую часть года — для обедов, отдыха и приёма гостей.
Это современный стандарт комфорта. У вас есть отдельное пространство с собственным санузлом и гардеробной, изолированное от остальных комнат. Это повышает уровень приватности и удобства повседневной жизни.
В проекте эти риски проработаны заранее. Узлы примыканий, оконные зоны, кровля и перекрытия выполнены как единая система. Это предотвращает утечки тепла, образование конденсата и увеличивает срок службы дома.
Да, проект полностью адаптирован для постоянного проживания. Внешние стены из газобетона толщиной 375 мм обеспечивают хорошую теплоизоляцию, что позволяет сохранять тепло зимой и комфортную температуру летом. При правильно реализованных инженерных системах дом будет энергоэффективным и удобным в эксплуатации круглый год.
Да, проект допускает адаптацию под индивидуальные задачи. Можно изменить назначение помещений, перераспределить площади, например увеличить кухню-гостиную, выделить кабинет или доработать гардеробные зоны. При этом важно учитывать конструктивную схему дома, чтобы изменения не повлияли на надёжность и экономику строительства.