Габариты дома — 12,6 × 12,5 м, поэтому комфортно он размещается на участке от 7–8 соток. При этом остаётся место для парковки, зоны отдыха и озеленения. Если участок больше, можно дополнительно организовать баню, беседку или сад.
Проект «Истамбул» — это просторный двухэтажный дом площадью 244 м² с мансардным этажом, созданный для комфортной и насыщенной жизни за городом. Архитектура дома сочетает аккуратную современную подачу с тёплыми натуральными материалами, а компактные габариты 12,6 × 12,5 м позволяют удобно разместить его на участке без потери функциональности.
Планировка выстроена логично и удобно для ежедневного использования. На первом этаже расположена большая кухня-гостиная площадью более 35 м² с прямым выходом на открытую террасу — это единое пространство для отдыха, общения и приёма гостей. Здесь же находится полноценная SPA-зона: сауна, душевая и санузел, а также котельная и прихожая. Отдельный кабинет на первом этаже даёт возможность спокойно работать или заниматься делами, не мешая остальным.
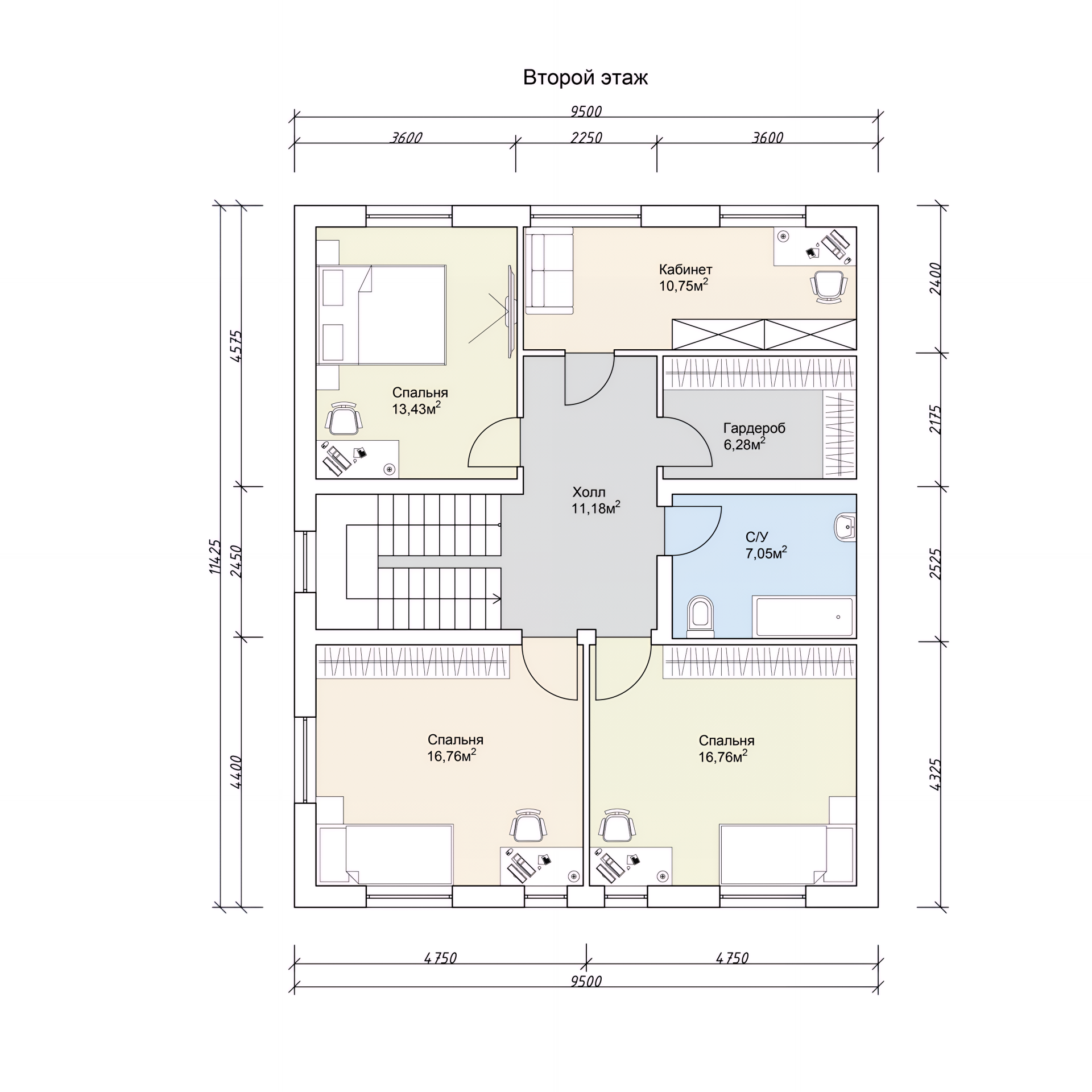
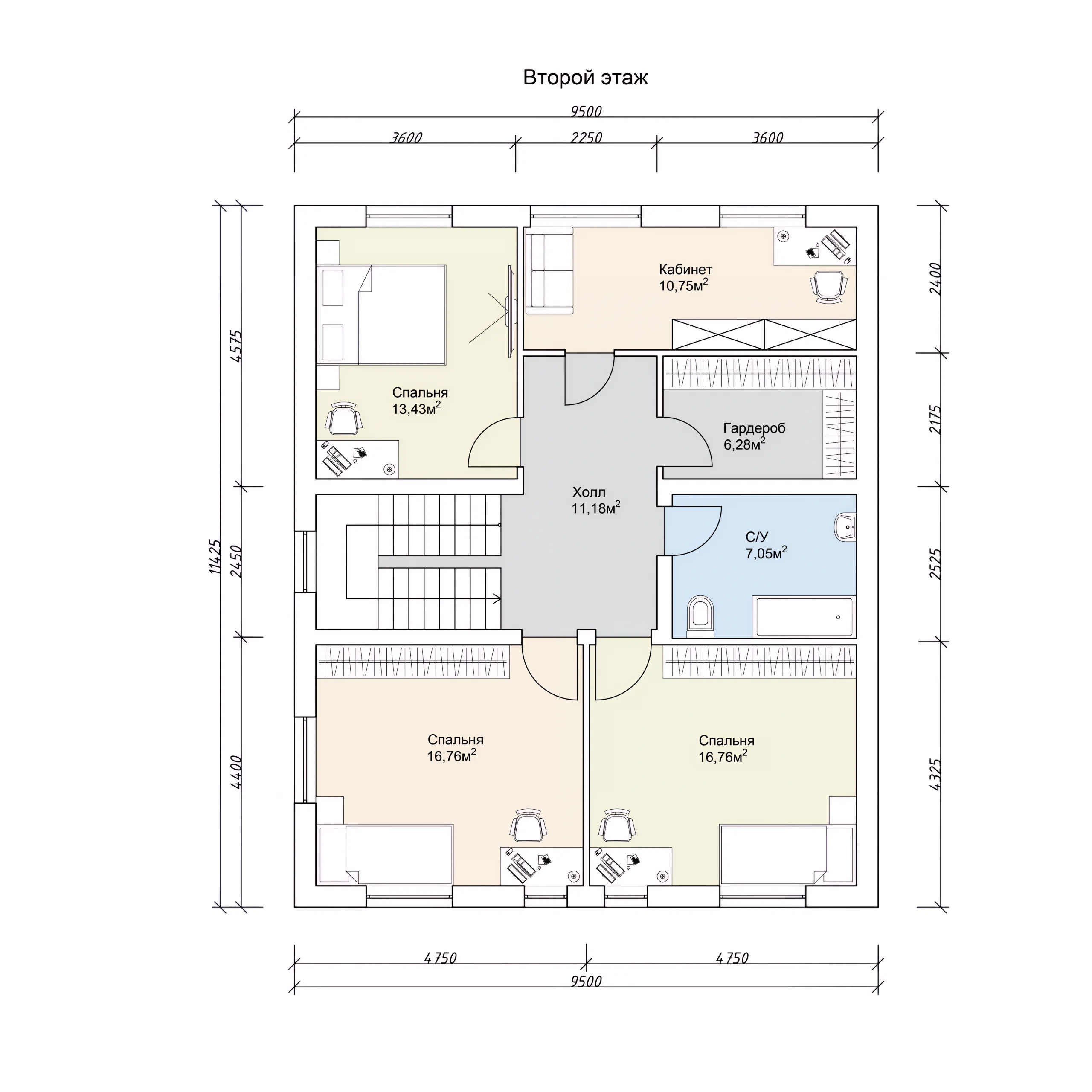
Второй этаж — приватная зона. Здесь расположены три спальни, гардеробная и общий санузел. Холл объединяет помещения и создаёт ощущение простора, а мансардный формат добавляет уюта и делает интерьер более «живым» и атмосферным.
Главное преимущество «Истамбул» — это грамотное разделение на функциональные зоны. Первый этаж полностью отдан под активную жизнь: кухня-гостиная, отдых, работа и восстановление. Второй этаж — это тишина и личное пространство для каждого члена семьи. Такое разделение делает дом удобным как для семьи, так и для приёма гостей.
Отдельного внимания заслуживает встроенная сауна. Это не просто дополнительная опция, а полноценная зона релакса, которая повышает уровень комфорта дома. Возможность восстановиться после рабочего дня или провести время с пользой для здоровья прямо у себя дома — серьёзное преимущество.
Также стоит отметить террасу с выходом из гостиной. Она органично продолжает жилое пространство и становится местом притяжения в тёплое время года. Здесь можно организовать обеденную зону, лаунж или место для вечернего отдыха.

Габариты дома — 12,6 × 12,5 м, поэтому комфортно он размещается на участке от 7–8 соток. При этом остаётся место для парковки, зоны отдыха и озеленения. Если участок больше, можно дополнительно организовать баню, беседку или сад.
Дом оптимально подходит для семьи из 3–5 человек. Три полноценные спальни на втором этаже позволяют каждому иметь личное пространство, а общая зона на первом этаже рассчитана на комфортное совместное времяпрепровождение.
Сауна расположена в отдельной зоне с душевой, что делает её полноценным SPA-блоком. Это удобно и с точки зрения эксплуатации, и с точки зрения комфорта — можно пользоваться ей в любое время года, не выходя на улицу. Такое решение особенно ценится в холодном климате.
Главный плюс — это сочетание отдыха и функциональности. Дом одновременно решает задачи повседневной жизни, работы и восстановления. Наличие сауны, террасы и просторной кухни-гостиной делает его не просто местом проживания, а полноценным пространством для жизни и отдыха.
Да, проект полностью адаптирован для постоянного проживания. Внешние стены из газобетона толщиной 375 мм обеспечивают хорошую теплоизоляцию, что позволяет сохранять тепло зимой и комфортную температуру летом. При правильно реализованных инженерных системах дом будет энергоэффективным и удобным в эксплуатации круглый год.
Да, проект допускает адаптацию под индивидуальные задачи. Можно изменить назначение помещений, перераспределить площади, например увеличить кухню-гостиную, выделить кабинет или доработать гардеробные зоны. При этом важно учитывать конструктивную схему дома, чтобы изменения не повлияли на надёжность и экономику строительства.