Мы используем cookie-файлы
для оптимизации работы сайта.

Проект дома 255 м² — двухэтажный из газобетона «Трир»

Проект дома 255 м² — двухэтажный из газобетона
«Трир»
Проект дома может меняться
в зависимости от ваших предпочтений
Проект дома 255 м² — двухэтажный из газобетона
«Трир»
Проект дома может меняться
в зависимости от ваших предпочтений
9 136 770 ₽
Стоимость
от 17.04.2026
Актуальную стоимость
уточняйте у менеджера
  • Жилая площадьЖилая площадь142.2 м²
  • Общая площадьОбщая площадь255 м²
  • Кол-во спаленКол-во спален3
  • Кол-во сан узловКол-во сан узлов3
  • Габариты домаГабариты дома11,4 x 11,2 м
  • Кол-во этажейКол-во этажей2
  • Сроки строительства120 дней

Описание

Проект двухэтажного дома из газобетона «Трир» площадью 139 м² выполнен в современном стиле модерн с акцентом на архитектуру, свет и открытые пространства. Габариты 11,4 × 11,2 м позволяют разместить дом даже на относительно компактном участке, при этом внутри реализована полноценная функциональная планировка без перегрузки лишними помещениями. Внешний облик формируется за счёт строгой геометрии, комбинированного фасада и панорамного остекления, которое визуально расширяет пространство и даёт максимум естественного света.

Первый этаж полностью отведён под активную зону жизни. Здесь расположена кухня, столовая и гостиная, объединённые в единое пространство с выходом на террасу площадью 23,1 м². За счёт панорамных окон и прямого выхода на улицу создаётся эффект продолжения дома во внешнюю среду. Также на первом этаже предусмотрены кабинет площадью 13 м², который можно использовать для работы или как дополнительную комнату, санузел, котельная и удобная прихожая.

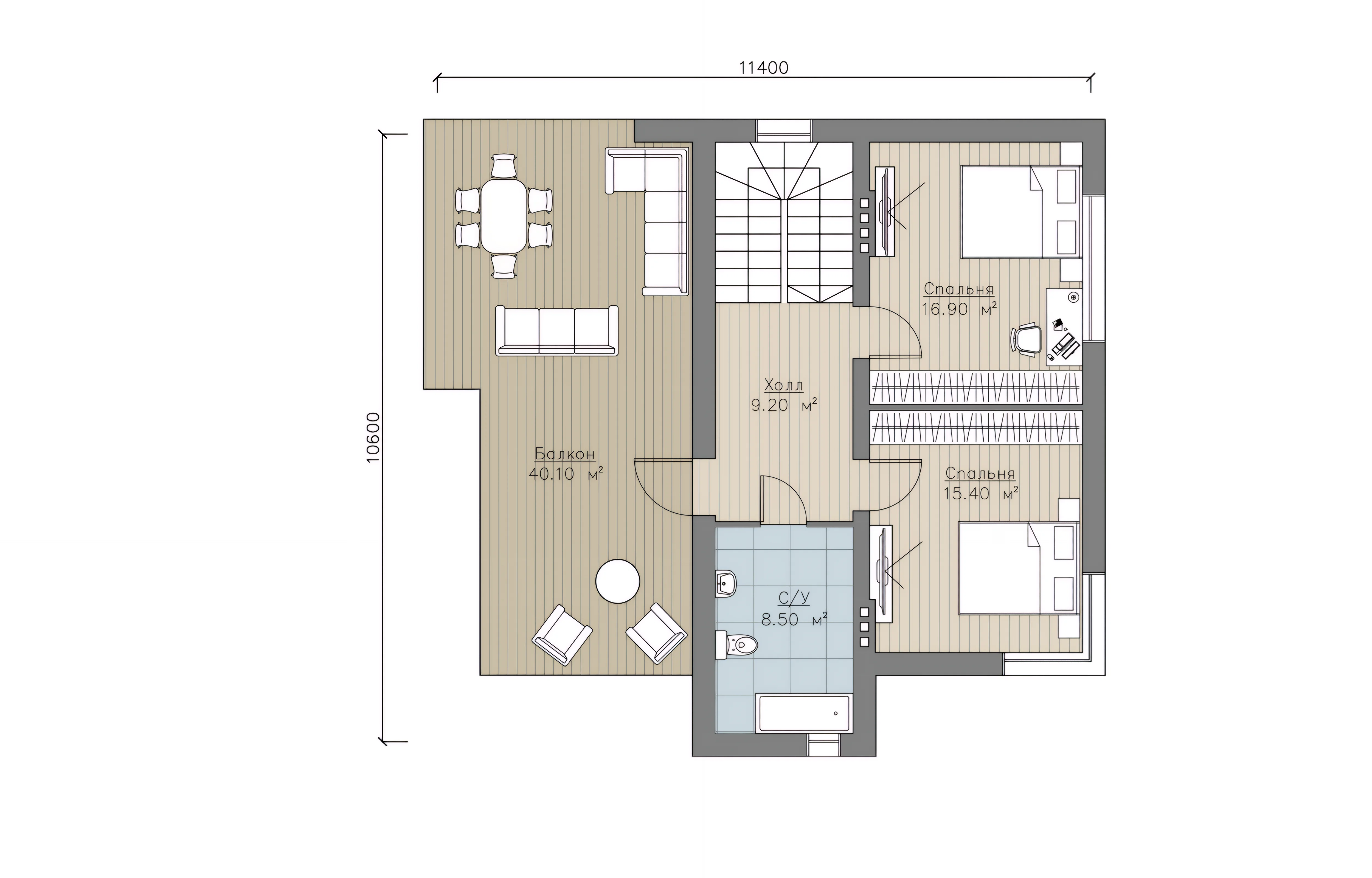
Второй этаж — это приватная зона. Здесь расположены три спальни, дополнительный санузел и холл. Ключевая особенность — большой балкон площадью 40,1 м², который фактически выполняет роль второй террасы и может использоваться как зона отдыха, лаунж или открытое пространство для досуга. Угловое остекление в спальне и кабинете усиливает ощущение объёма и делает помещения светлыми в течение всего дня.

Преимущества планировки

Планировка дома логично разделена по этажам: первый этаж для повседневной активности, второй — для отдыха. Это позволяет снизить уровень шума в спальнях и сделать проживание комфортным даже для семьи с детьми. Объединённая кухня-гостиная экономит пространство и делает дом более «живым», при этом остаётся возможность чётко зонировать функции за счёт расстановки мебели.

Наличие отдельного кабинета — практичное решение для удалённой работы или учёбы без необходимости занимать жилые комнаты. Три санузла равномерно распределены по дому, что исключает бытовые неудобства и очереди. Большой балкон на втором этаже — редкое и функциональное решение, которое добавляет полезное пространство без увеличения пятна застройки.

Компактные габариты при двух этажах позволяют сократить площадь застройки, что особенно важно для небольших участков. При этом сохраняется полноценный набор помещений, включая три спальни и рабочую зону, без компромиссов по удобству.

Комплектация проекта

Комплектация

Черновик

Утепленная фундаментая плита

  • Песчаная подушка т=40-60см с утеплёнными коммуникациями
  • Подбетонка, бетон марки М100, т=10см
  • Гидроизоляция, плёнка 150мкм
  • Утеплитель Технониколь xps eco carbon, т= 100мм
  • Фундаментная плита, бетон марки М350
Черновик

Стены

  • стены газобетон IstKult, толщина т=375мм, плотность D400
  • перегородки газобетон IstKult, толщина т=150мм, плотность D500
Черновик

Армопояс, колоны и ригеля

  • Армопояс в U-блок IstKult
  • Монолитные колонны. Бетон В22,5
  • Ригель — горизонтальный несущий элемент конструкции
Черновик

Перекрытие

В зависимости от типа проекта :

  • Балочные (Из дерева)
  • Газобетоные
  • Монолитное
Черновик

Крыша

  • Брус 50х150 (Стыковка через запил)
  • Обрезная доска для стропил
  • Бруски для контр обрешетки
  • Крепежные элементы
  • Изоляция: Гидро-ветрозащитная
  • Антисептики для защиты древесины
Черновик

Кровля

  • Гибкая черепица

Доп.работы

Утеплённая бетонная отмостка

Снижает промерзание грунта у основания дома и отводит воду от фундамента.

Утепление мауерлата

Снижает теплопотери в зоне примыкания кровли к стенам и предотвращает образование мостиков холода.

Подшив кровельных свесов (металл)

Защищает конструкцию крыши от влаги и ветра, обеспечивая аккуратный внешний вид и вентиляцию.

Обратная подсыпка к отмостке

Формирует правильный уклон и уплотнение грунта для стабильности отмостки и отвода воды от дома.

Кольцевая дренажная система

Отводит грунтовые и поверхностные воды, предотвращая переувлажнение и давление на фундамент.

Водосточная система (металл)

Организует эффективный отвод дождевой и талой воды с кровли, защищая фасад и фундамент.

Необязательные доп.работы

Внешняя штукатурка

Защищает фасад от атмосферных воздействий и формирует аккуратный внешний вид здания.

Внутренняя штукатурка

Выравнивает стены и подготавливает поверхности под чистовую отделку.

Стяжка пола

Создаёт ровное и прочное основание под напольные покрытия и распределяет нагрузки.

Водоснабжение

Организуется подача воды с разводкой труб по всем точкам потребления.

Сантехника

Монтаж инженерных узлов и оборудования для корректной работы системы водоотведения и водопользования.

Электрические работы

Выполняется разводка электросетей с учётом безопасности и удобства эксплуатации.

Утепление кровли

Обеспечивает теплоизоляцию дома, снижает теплопотери и предотвращает образование конденсата.

Стоимость проекта

Итоговая стоимость 
на 20260415
9 136 770 ₽
Стоимость проекта дома «Трир» составляет 9 136 770 ₽. В эту цену заложен рациональный баланс между архитектурой, площадью и функциональностью. Дом не перегружен сложными конструктивными элементами, но при этом включает решения, которые реально повышают комфорт проживания: панорамное остекление, кабинет, просторный балкон и три санузла.
За счёт компактных габаритов и двухэтажной схемы снижается площадь фундамента и кровли, что делает строительство более экономичным по сравнению с одноэтажными домами аналогичной площади. При этом заказчик получает полноценный дом с разделением зон, достаточным количеством комнат и современным внешним видом без переплаты за избыточные решения.

Как мы строим дом

Утепленный фундамент

Мы используем утеплённую монолитную плиту. Это надёжное и тёплое основание, которое защищает дом от потерь тепла через пол. Сначала формируется плотная песчаная подушка толщиной 40–60 см с

заранее заложенными коммуникациями. Затем заливается выравнивающий слой бетона (М100, толщина 10 см), чтобы все последующие слои легли ровно. Укладывается гидроизоляционная плёнка (150 мкм), которая защищает конструкцию от влаги. Далее монтируется утеплитель (Технониколь XPS Eco Carbon, толщина 100 мм), который не даёт фундаменту промерзать. После армирования (арматура по ГОСТ) заливается основная плита из бетона высокой прочности (М350) — в итоге получается цельное, надёжное основание под весь дом.

Стены

Далее возводятся стены из газобетона по технологии тонкошовной кладки (IstKult). Наружные стены выполняются из блоков толщиной 375 мм с плотностью D400 — это тёплый материал, который в

большинстве случаев не требует дополнительного утепления. Внутренние перегородки делаются из газобетона толщиной 150 мм (D500). Между блоками используется минимальный слой клея (около 2 мм ±1 мм), благодаря чему стены лучше сохраняют тепло. Особое внимание уделяется всем узлам — в местах окон, перекрытий и соединений стен, чтобы исключить теплопотери. Газобетон практически не даёт усадки (около 1,5 мм на этаж) и обладает хорошей прочностью (B2.5), а также высокой огнестойкостью (REI 240).

Армопояс, колоны и ригеля

Для усиления конструкции выполняется армопояс, а также при необходимости добавляются колонны и ригеля. Армопояс делается в заводских U-блоках (IstKult), что позволяет получить ровную и

аккуратную геометрию. Внутри выполняется армирование, а сами колонны заливаются из бетона класса B22,5. Ригель служит горизонтальным несущим элементом и помогает правильно распределять нагрузки. Весь этот этап делает дом более жёстким и устойчивым.

Деревянные перекрытия

Надёжное и практичное решение для частного дома, особенно при скатной кровле. Чаще всего применяются в одноэтажных домах или домах с мансардой, где нет повышенных нагрузок — это позволяет сделать конструкцию быстрее и экономичнее без потери надёжности.

Используется доска камерной сушки (КС), которая не деформируется со временем. Основные балки сечением 50×200 мм укладываются с расчётным шагом и опираются на армопояс через изоляционный слой, чтобы защитить древесину от влаги.

Все соединения выполняются с запилами — элементы точно подгоняются друг к другу, за счёт чего конструкция получается жёсткой и стабильной. Дополнительно применяются металлические крепёжные элементы для усиления узлов. Древесина обрабатывается огнебиозащитными составами, что защищает её от влаги, грибка и повышает устойчивость к возгоранию.

Газобетонное перекрытие

Применяются в случаях, когда требуется более жёсткая и устойчивая конструкция, чем деревянная — например, при полноценном втором этаже, больших пролётах или использовании тяжёлых перегородок. Такое решение позволяет избежать вибраций и делает перекрытие более стабильным в эксплуатации.

Конструкция собирается из газобетонных элементов с металлическими рёбрами жёсткости и последующей заливкой бетона. За счёт этого снижается расход материалов по сравнению с монолитом, но сохраняется необходимая прочность. Перекрытие работает как единая система вместе со стенами из газобетона, равномерно распределяя нагрузки.

Особое внимание уделяется узлам опирания, армированию и утеплению по периметру, чтобы исключить мостики холода и сохранить теплоэффективность. В результате получается прочное, стабильное и тёплое перекрытие с оптимальным балансом между стоимостью и надёжностью.

Монолитное перекрытие

Максимально прочное и жёсткое решение, которое применяется при высоких нагрузках: полноценный второй этаж, большие пролёты, сложная архитектура. Такое перекрытие полностью исключает вибрации и даёт ощущение «каменного» дома.

Конструкция выполняется по опалубке с обязательным армированием в две сетки (арматура по ГОСТ) с соблюдением защитного слоя бетона. Все узлы, проходы коммуникаций и усиления заранее закладываются до заливки, чтобы получить цельную и правильно работающую плиту. Используется заводской бетон, что гарантирует стабильное качество и прочность.

Особое внимание уделяется геометрии, уровню и равномерности армирования — это напрямую влияет на надёжность всей конструкции. По периметру прорабатывается утепление и узлы примыкания, чтобы исключить мостики холода. В результате получается монолитная плита с высокой несущей способностью, долговечностью и максимальной устойчивостью к нагрузкам.

Крыша

Завершающий несущий контур дома, который принимает на себя снеговые и ветровые нагрузки и защищает конструкцию от влаги.

Основа — стропильная система из сухой доски с обязательной огнебиозащитной обработкой. Узлы собираются с точной геометрией: выдерживаются шаг, углы запилов и линии конька, чтобы нагрузка распределялась равномерно. Все соединения выполняются на гвоздях/саморезах и усиливаются металлическими элементами в ключевых зонах.

Формируется жёсткий каркас: мауэрлат закреплён к стенам, стропила опираются правильно, дополнительно используются затяжки и распорки для исключения прогибов. Далее выполняется сплошное или разреженное основание (обрешётка/настил), подготавливается вентиляционный зазор и узлы под кровельное покрытие.

На выходе — ровная, жёсткая и геометрически точная конструкция, готовая к устройству кровли, утеплению и последующим слоям.

Кровля

Это многослойная система, которая обеспечивает герметичность, вентиляцию и долговечность всей крыши. На этом этапе конструкция окончательно защищается от осадков и перепадов температур.

Основание под кровлю подготавливается на жёстком настиле (OSB/обрешётка), после чего укладывается подкладочный гидроизоляционный ковер с герметизацией всех нахлёстов и примыканий. Особое внимание уделяется зонам риска — ендовы, карнизы, конёк и проходы через кровлю.

Далее монтируется финишное покрытие — гибкая битумная черепица. Укладка выполняется с точной геометрией рядов, соблюдением шагов крепления и температурных режимов, что обеспечивает плотное прилегание и защиту от ветровых нагрузок. Формируются аккуратные узлы коньков и ребер.

Инженерные элементы интегрируются в кровлю:
— вентиляционные выходы для подкровельного пространства,
— аэраторы для удаления влаги и продления срока службы конструкции,
— герметичные проходы через кровлю.

Примыкания (в том числе к дымоходам) выполняются с использованием металлических фартуков и герметиков, исключающих протечки. Дополнительно устанавливается водосточная система и элементы безопасности/эксплуатации кровли.

Результат — полностью герметичная, вентилируемая и эстетически завершённая кровля, готовая к эксплуатации в любых погодных условиях.

Индивидуальные
изменения проекта

  • Можно изменить планировку
  • Можно увеличить площадь
  • Можно изменить внешний вид
  • Можно адаптировать под участок

Оставьте имя и телефон что бы обсудить
индивидуальные изменения

Отправляя данную форму вы соглашаетесь с политикой обработки персональных данных.

Вопросы и ответы

Шаблон проекта
Зачем нужен такой большой балкон и как его использовать?

Балкон площадью 40,1 м² — это полноценная дополнительная зона отдыха. Его можно использовать как летнюю гостиную, лаунж-зону, место для завтраков или даже как частично закрытое пространство с мебелью и растениями. По сути, это вторая терраса на уровне второго этажа.

Да, за счёт двухэтажной конструкции дом занимает меньше места на участке по сравнению с одноэтажными аналогами. Это позволяет сохранить больше свободной территории под двор, парковку или благоустройство.

При использовании современных стеклопакетов и правильном монтаже потери тепла минимальны. При этом панорамные окна дают больше естественного света, что снижает потребность в искусственном освещении и повышает комфорт внутри дома.

Лестница размещена компактно и логично вписана в центр дома, не создаёт длинных проходов и не занимает лишнюю площадь. При этом она обеспечивает удобный доступ на второй этаж без влияния на функциональность первого уровня.

Похожие проекты

Рекомендуем

Подбор дома по особеностям